Honoraires à la charge de l'acquéreur (Prix hors honoraires : 280000 euros).
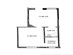
Dans le quartier résidentiel de la Porte Dauphine, au sein d'un immeuble ancien des années 1920-1930, SIAMO vous présente un 2 pièces de 28,40 m2, situé au 1er étage avec ascenseur d'une copropriété bien entretenue de 31 lots principaux. Idéalement situé, à 2 minutes du RER C (Henri Martin) et à 7 à 8 minutes du métro ligne 2 (Porte Dauphine), à proximité immédiate de toutes les commodités, cet appartement est traversant Est/Ouest. Il se compose d'un séjour avec cheminée, d'une chambre confortable de 11,70 m2, d'une cuisine, ainsi que d'une salle d'eau avec WC. Une cave complète ce bien. Amateurs de l'ancien, vous serez séduits par sa belle hauteur sous plafond, son cachet et son emplacement recherché.
28.4 m²
10 211 €
2
1
1
1
1 sur 5
3.57 %
90 € / mois
1930
Est
Ouest
Oui
Oui
Oui
Oui
Oui (31 lots)
Consommations énergétiques
Logement économe
314
Logement énergivore (kWhEP/m2/an)
Émissions de gaz à effet de serre
Faible émission de GES
12
Forte émission de GES(kgeqCO2/m2/an)
Contact NAKACHE RUBEN
Contacter gratuitement à l'aide du formulaire ci-dessous.