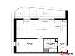
SAINT-LOUIS PROGRAMME NEUF 2 pièces neuf de 50,66 m2 environ, au RDC avec ascenseur. Située au coeur de Saint-Louis, cadre de vie avec toutes les commodités, à deux pas de la frontière Suisse ! Vues imprenables sur la ville, environnement privilégié de deux hectares de nature prolongé par un parc aménagé ! L'appartement comprend une entrée, une pièce de vie, 1 chambre, une salle de bain, 1 wc. 1 terrasses, de 15,62 Infos techniques : - Prestations de standing - Volets électriques - Chauffage au sol - Possibilité d'investissement en PINEL - Possibilité LMNP - Livraison 2ème semestre 2026 Référence annonce : 1992/F2 Honoraires charge vendeur. Plusieurs autres lots disponibles du studio au 5 pièces ! Pour plus de renseignements n'hésitez pas à contacter l'agence IMMOPLUS, au 03.89.40.84.34. A visiter par l'agence Immoplus, votre agence immobilière à BARTENHEIM et à votre service dans l'immobilier depuis 1970. Les informations sur les risques auxquels ce bien est exposé sont disponibles sur le site Géorisques : https://www.georisques.gouv.fr. A visiter par l'agence Immoplus, votre agence immobilière à BARTENHEIM et à votre service dans l'immobilier depuis 1970.
50.66 m²
4 330 €
2
1
1
1
2024
Est
Nord
Oui
1
1
Oui
Contact Immo Plus
Contacter gratuitement à l'aide du formulaire ci-dessous.