3 chambres - Maison de 91 m2 habitables sur sous-sol total (
Rueil-Malmaison 92500
0
Honoraires à la charge de l'acquéreur (Prix hors honoraires : 577000 euros).
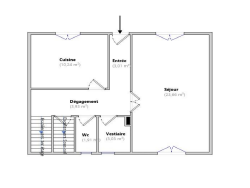
L'Agence de l'Empereur vous présente en exclusivité cette agréable maison de 91,30 m2 habitables - plus 46,5 m2 de surface annexe en rez-de-jardin -, édifiée sur une parcelle de près de 500 m2. Construction de 1959 sur un haut soubassement en meulière apparente avec étages en briques sous enduit. Elle se compose au rez-de-chaussée surélevé d'une entrée, d'un séjour traversant avec parquet massif, d'une cuisine dînatoire, d'un dégagement, d'un dressing et de commodités. À l'étage, un dégagement avec placard dessert trois chambres d'environ 12 m2 et une salle de bains avec douche et baignoire. En rez-de-jardin : garage, pièce de rangement et cave. Des travaux de rénovation sont à prévoir pour remettre la maison au goût du jour et aux normes actuelles (isolation, électricité). Un beau projet qui vous permettra de laisser libre cours à votre inspiration. Vous serez séduit par la taille de la parcelle, le calme de cette adresse résidentielle, le charme de l'ancien avec ces parquets (séjour, couloir, chambres) et les radiateurs en fonte. Deux à trois stationnements extérieurs en plus du garage. Points complémentaires : ravalement récent, fenêtres d'origine à simple vitrage, chaudière au fioul pour le chauffage et production d'eau chaude par ballons électriques récents. La configuration du bien, situé en zone UED du PLU de Rueil, offre une éventuelle possibilité d'agrandissement. Un recul minimum de 3 mètres par rapport aux limites séparatives est exigé ; la construction peut en revanche être implantée en mitoyenneté s'il s'agit du mur d'une construction déclarée (et non d'une simple clôture), ce qui permettrait ici un éventuel agrandissement de plusieurs dizaines de mètres carrés, sous réserve de validation par un architecte DPLG et par la mairie. Les informations sur les risques auxquels ce bien est exposé sont disponibles sur le site Géorisques : www.georisques.gouv.fr
91 m²
6 593 €
23 m²
4
3
1
1
3.99 %
1958
1
Consommations énergétiques
Logement économe
456
Logement énergivore (kWhEP/m2/an)
Émissions de gaz à effet de serre
Faible émission de GES
132
Forte émission de GES(kgeqCO2/m2/an)
Contact Agence De L'empereur
Contacter gratuitement à l'aide du formulaire ci-dessous.