3 PIÈCES DERNIER ÉTAGE - TERRASSES & PARKING - 5MIN GARE SNCF
Deauville 14800
0
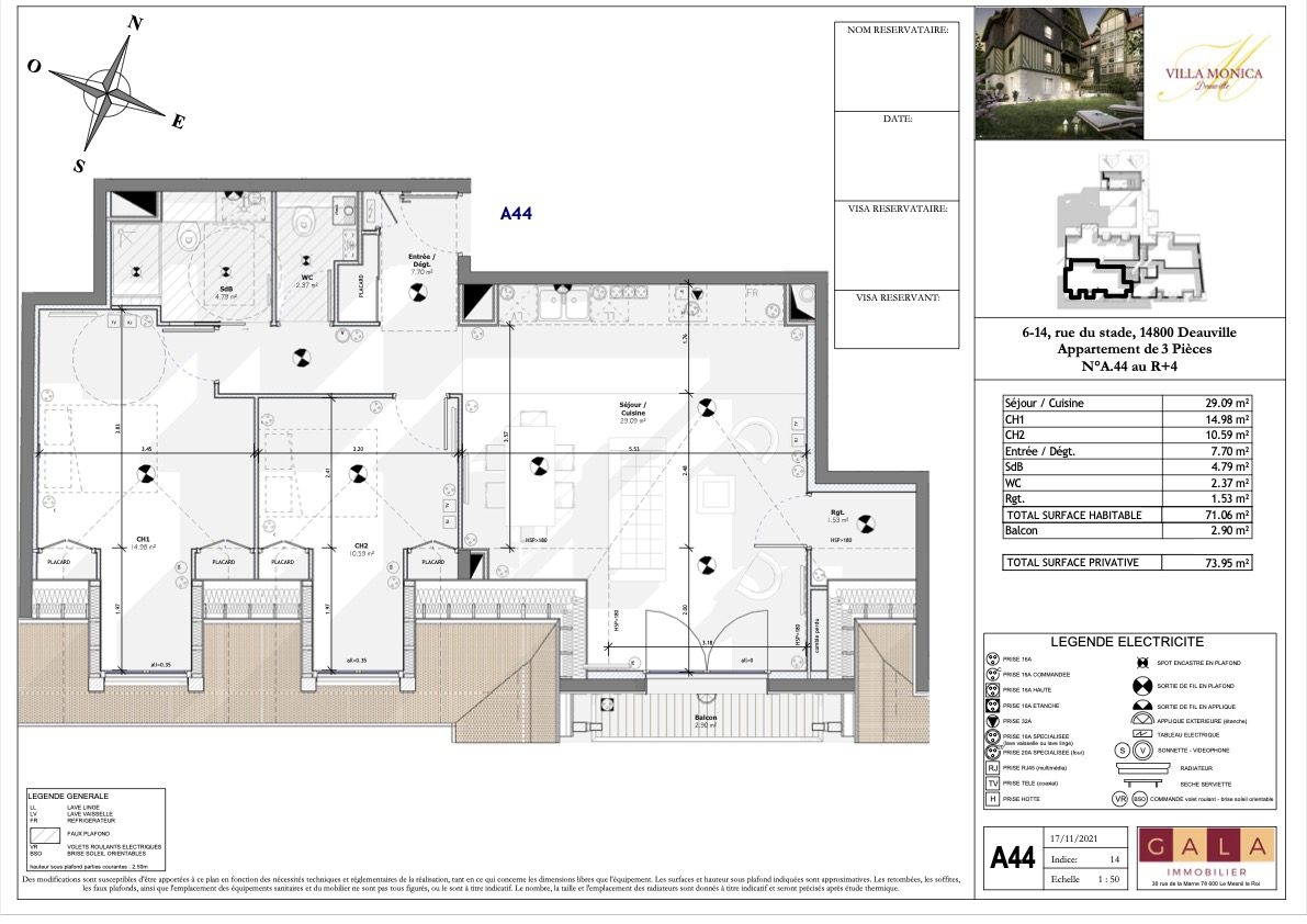
3 PIÈCES DERNIER ÉTAGE - TERRASSES et PARKING - 5MIN GARE SNCF Emplacement idéal au sein d'un environnement ombragé et paisible, à proximité des Planches et du centre-ville, à 450 mètres de la gare SNCF "Trouville - Deauville" reliant Paris en 2 heures. Découvrez ce charmant 3 pièces au dernier étage. L'appartement comprend une entrée avec rangements, un séjour lumineux (sud) avec cuisine ouverte ouvrant sur deux terrasses, deux chambres dont une spacieuse avec un dressing et une terrasse privative, une salle de bains et un WC séparé. Une place de parking complète ce bien pour un supplément de 30 000 euros. Disponible en 2028. Bâtiment basse consommation, faibles charges. Pour plus d'informations contactez Clara Martin au O6.44.3O.55.19 Visuels non contractuels.