3 pièces proximité Montparnasse / Château / Village Pernety
Paris 75014
0
Honoraires à la charge de l'acquéreur (Prix hors honoraires : 547200 euros).
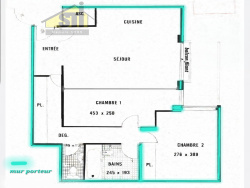
Exclusivité STI : Dans un immeuble parfaitement bien entretenu, au 4è étage sur 6, avec ascenseur, bel appartement 3 pièces complètement modulable, au calme, sur cour intérieure. Belle cuisine fermée (US possible), un vaste séjour, balcon filant, nombreux placards, SDB, WC séparés, et une chambre sur cour (possibilité deuxième chambre), avec placard intégrés. En très bon état, excellent DPE, une cave vient compléter ce bien. Vues dégagées sur verdure et ciel, très calme, clair et lumineux. Copropriété très bien entretenue et de bonne facture. Situé entre Gaité et Pernety, proximité toutes commodités, Gare Montparnasse à proximité. A voir rapidement. Eau chaude, et chauffages, collectifs, inclus dans les charges 260 euros/mois. Pas de travaux de copropriété à prévoir.
Vidéo https://youtu.be/PBUW3pdKCl4
65.91 m²
8 648 €
3
2
1
1
4 sur 6
4.17 %
260 € / mois
1976
Ouest
Nord
1
Oui
Oui
Oui
Oui (38 lots)
Consommations énergétiques
Logement économe
190
Logement énergivore (kWhEP/m2/an)
Émissions de gaz à effet de serre
Faible émission de GES
37
Forte émission de GES(kgeqCO2/m2/an)
Contact OSMANI
Contacter gratuitement à l'aide du formulaire ci-dessous.