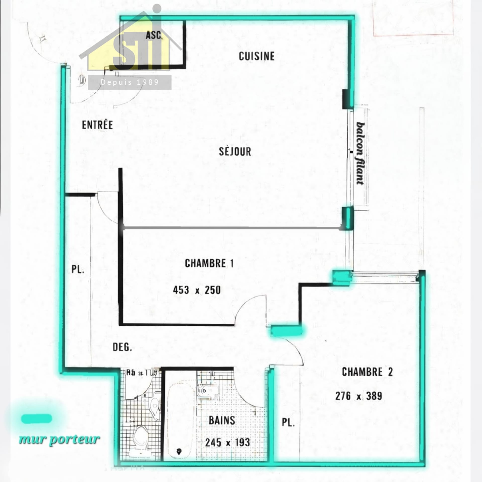
Rue Marie Rose, dans une petite rue très recherchée dans le quartier vert du 14 ème arrondissement à 5 minutes du Métro ligne 4 et de toutes les commodités. Dans un magnifique immeuble en pierre de taille avec gardien et ascenseur, sécurisé (DIGICODE/INTERPHONE). Nous vous proposons en étage un superbe appartement de 2/3 pièces avec tout le charme de l'ancien. PARQUET, MOULURES et CHEMINEES, HAUTEUR SOUS PLAFOND, très CALME et lumineux, en DOUBLE EXPOSITION (est/ouest). Il comprend : Entrée avec dressing, séjour double sur la rue exposé plein ouest, chambre sur cour, cuisine indépendante aménagée, une salle d'eau avec WC. Le bien est en bon état avec fenêtres en double vitrage, charges de 230 euros mensuelles. Il regroupe calme, lumière et charme de l'ancien. Une cave est comprise.
Les informations sur les risques auxquels ce bien est exposé sont disponibles sur le site Géorisques : www.georisques.gouv.fr
52 m²
9 519 €
22 m²
2
1
1
1
1 sur 6
Est
Ouest
Oui
Oui
Oui
Oui
Oui
Oui
Oui
Consommations énergétiques
Logement économe
252
Logement énergivore (kWhEP/m2/an)
Émissions de gaz à effet de serre
Faible émission de GES
10
Forte émission de GES(kgeqCO2/m2/an)
Contact Julien MEURIOT
Contacter gratuitement à l'aide du formulaire ci-dessous.