Appartement 4/5 pièces de standing avec terrasse et vue dégagée Rue de Bucarest, Tram D sur place
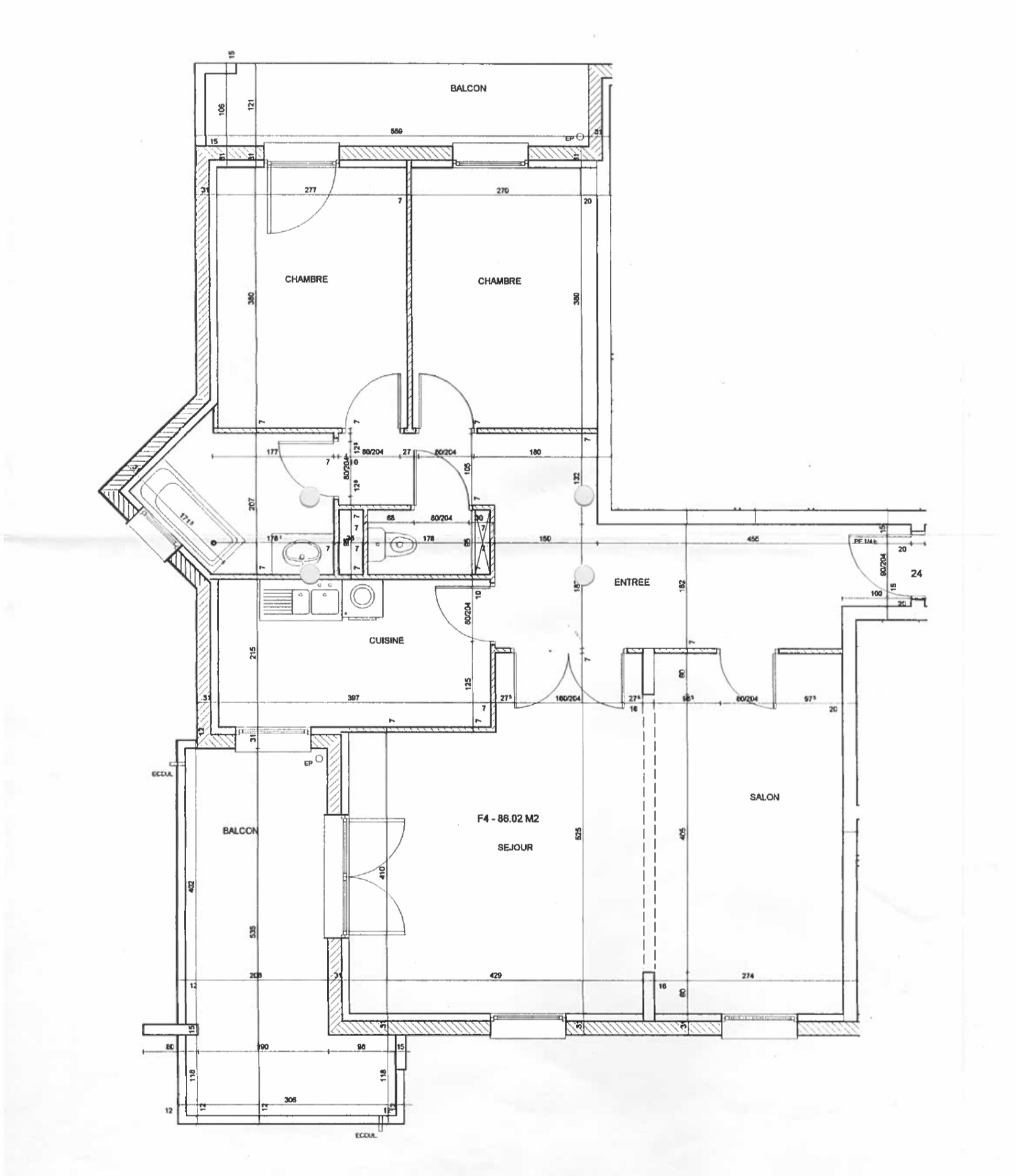
Découvrez en exclusivité ce magnifique appartement T4/5 de 96,80 m² situé dans un immeuble de standing construit en 2012. Ce bien, en excellent état, offre une vue dégagée et une exposition ouest, baignant les pièces de lumière naturelle tout au long de la journée. Au premier étage d'un immeuble de 6 étages avec ascenseur, cet appartement spacieux comprend un séjour de 26 m², trois chambres confortables, une salle de bains et une salle d'eau, ainsi qu'un WC indépendant. La cuisine est aménagée et prête à accueillir vos créations culinaires. Profitez de deux terrasses totalisant 12 m², parfaites pour des moments de détente en plein air. Les fenêtres en PVC avec double vitrage garantissent une isolation optimale, tandis que le chauffage collectif assure un confort thermique toute l'année. Le DPE est classé C. Conforme aux normes PMR, cet appartement est accessible à tous. Un stationnement intérieur est également inclus, offrant une solution pratique pour votre véhicule. Imaginez-vous vivre dans ce cadre élégant et fonctionnel, où chaque détail a été pensé pour votre bien-être. Les hauteurs sous plafond de 2,50 m ajoutent une touche de grandeur à cet espace déjà spacieux. À proximité, vous trouverez plusieurs commodités : des bus et tramways à 5 minutes à pied, des crèches, une maternelle et une école élémentaire à moins de 10 minutes à pied, ainsi que des restaurants et des commerces à 5 minutes à pied. Des parcs et jardins sont également accessibles à 15 minutes à pied, offrant des espaces verts pour des promenades agréables. Ne manquez pas cette opportunité de vivre dans un appartement de standing, alliant confort, praticité et élégance. Contact/ LAURENT NICOLIN 06 PUIS 80 PUIS 99 PUIS 02 PUIS 11 ou laurent.nicolin@asi67.com
Honoraires à la charge du vendeur. Dans une copropriété de 100 lots. Quote-part moyenne du budget prévisionnel 2 850 /an. Aucune procédure n'est en cours. Classe énergie C, Classe climat C Montant estimé des dépenses annuelles d'énergie pour un usage standard : entre 638.00 et 864.00 sur les années 2021, 2022 et 2023 (abonnements compris). Les informations sur les risques auxquels ce bien est exposé sont disponibles sur le site Géorisques : georisques.gouv.fr.
96.8 m²
3 801 €
26 m²
4
3
1
1
1 (séparé)
1 sur 6
238.00 € / mois
2012
Ouest
Oui
1
2
Oui
Oui
Oui (100 lots)
Consommations énergétiques
Logement économe
69
Logement énergivore (kWhEP/m2/an)
Émissions de gaz à effet de serre
Faible émission de GES
11
Forte émission de GES(kgeqCO2/m2/an)
Contact
Contacter gratuitement à l'aide du formulaire ci-dessous.