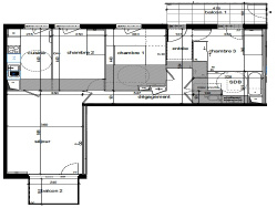
Superbe Appartement familial de 80m2, au coeur d'un quartier nouveau et bien desservi, tout près des quais de Seine : - Séjour de 21,43 m2 - 3 Chambres : Trois chambres (12 m2, 11 m2 et 9,37 m2) - 2 balcons (7,09 m2 et 4,26 m2) -Cuisine séparée - 1 parking intérieur complète ce bien Situé dans un écoquartier en pleine expansion, cet appartement allie tranquillité et proximité des transports (avec RER C, ligne 15 du Grand Paris Express, et TZEN5) Pas de frais d'agence - Frais de Notaire réduits - Photos non contractuelles
80 m²
5 288 €
11 m²
4
3
1
5
2 (11 m²)
1
Oui (223 lots)
Consommations énergétiques
Logement économe
71
Logement énergivore (kWhEP/m2/an)
Émissions de gaz à effet de serre
Faible émission de GES
10
Forte émission de GES(kgeqCO2/m2/an)
Contact AMAR Denis
Contacter gratuitement à l'aide du formulaire ci-dessous.