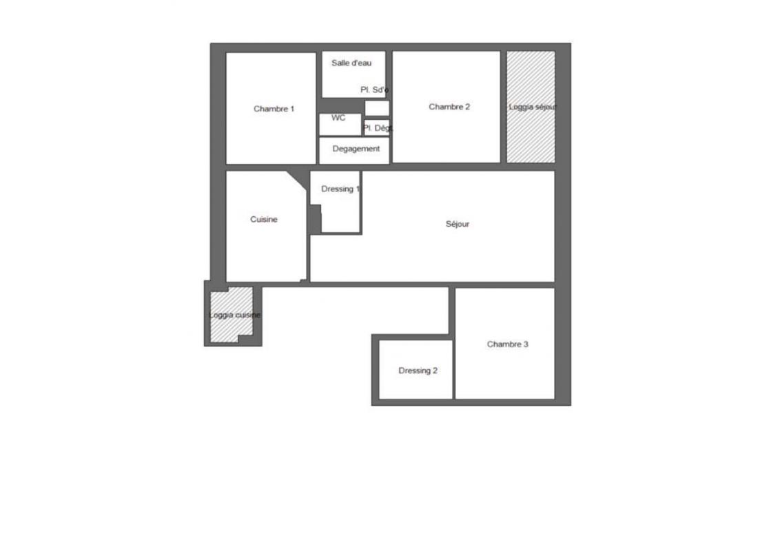
C'est au c?ur du 11? arrondissement de Marseille, dans un quartier résidentiel paisible, que se découvre cet appartement traversant de plus de 87 m², niché au sein d'une petite résidence. Dès l'entrée, le regard se porte sur une vaste pièce de vie baignée de lumière, ouverte par de larges ouvertures sur un long balcon/terrasse, ou menant vers une grande cuisine entièrement équipée.
L'espace nuit regroupe trois chambres, une salle d'eau ainsi qu'un WC indépendant. Le confort est assuré tout au long de l'année grâce à une climatisation réversible. Aucun travaux obligatoire n'est à prévoir. Une grande cave attenante et une aisance de stationnement viennent compléter ces prestations.
Ce bien séduit par le calme de son environnement, la qualité de ses aménagements et sa proximité immédiate avec les commodités et les grands axes de circulation.
Contact : Laurent Campana ? 06 74 44 44 01
Bien soumis au statut de la copropriété, 24 logements, procédure en cours : aucune, 30 lots, Charges budget prévisionnel annuel 1 520 €.
Annonce publiée par Laurent Campana (EI) votre agent commercial en immobilier LF immo à Marseille, 13012 immatriculé au RSAC de MARSEILLE sous le n°900 758 301 000 15. Consultez nos tarifs sur le site LF immo.
Les informations sur les risques auxquels ce bien est exposé sont disponibles sur le site Géorisques : www.georisques.gouv.fr.
87 m²
2 632 €
4
3
1
1
1
2 sur 3
Américaine
Oui
Oui
Consommations énergétiques
Logement économe
89
Logement énergivore (kWhEP/m2/an)
Émissions de gaz à effet de serre
Faible émission de GES
10
Forte émission de GES(kgeqCO2/m2/an)
Contact Laurent Campana
Contacter gratuitement à l'aide du formulaire ci-dessous.