69320 FEYZIN CENTRE VENTE APPARTEMENT T3 2 CH 58 m2 + PARKING
Feyzin 69320
0
Honoraires à la charge du vendeur.
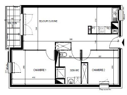
69320 FEYZIN CENTRE VENTE APPARTEMENT T3 2 CH 58 m2 + PARKING 163 000 Fin du bail Septembre 2026 EXCLUSIVITE 20min de LYON DHG CONSEIL vous propose dans une résidence récente, appartement de type 3 d'environ 58m2, en étage avec ascenseur, et en parfait état Séjour avec accès au balcon, cuisine aménagée ouverte sur séjour, 2 chambres, salle d'eau et wc Chauffage : individuel gaz radiateur Eau chaude sanitaire : individuel gaz Lots annexes : en option : 1 garage en sous sol Equipements logement : / Equipement copropriété : vidéophone, local vélo Montant moyen annuel des charges courantes: xxx /an Taxe Foncière : 997 /an Soumis au statut de la copropriété: 139 lots dont 69 habitations Absence de procédure de redressement sur la copropriété DPE: C GES : C Montant estimé des dépenses annuelles d'énergie pour un usage standard : entre 450 et 660 / an Date de référence des prix de l'énergie utilisés pour établir cette estimation : 01 01 2021 Honoraires charge Vendeur Visitez facilement : VISITE VIRTUELLE 360° du bien sur rendez-vous Les informations sur les risques auxquels ce bien est exposé sont disponibles sur le site Géorisques : www.georisques.gouv.fr Ce bien est proposé à la vente interactive. La participation à celle-ci est soumise à agrément préalable. Toutes les offres seront transmises au vendeur, lequel restera libre dans la sélection de l'offre à laquelle il entend donner suite. Une offre en ligne ne constitue pas une offre ferme et définitive au sens de l'article 1114 du code civil, mais une simple intention d'achat. Le prix affiché correspond à un prix de première offre possible honoraires de négociation inclus
Honoraires à la charge du vendeur. Dans une copropriété de 139 lots. Aucune procédure n'est en cours. Classe énergie C, Classe climat C Montant estimé des dépenses annuelles d'énergie pour un usage standard : entre 450.00 et 660.00 sur les années 2021, 2022 et 2023 (abonnements compris). Les informations sur les risques auxquels ce bien est exposé sont disponibles sur le site Géorisques : georisques.gouv.fr.