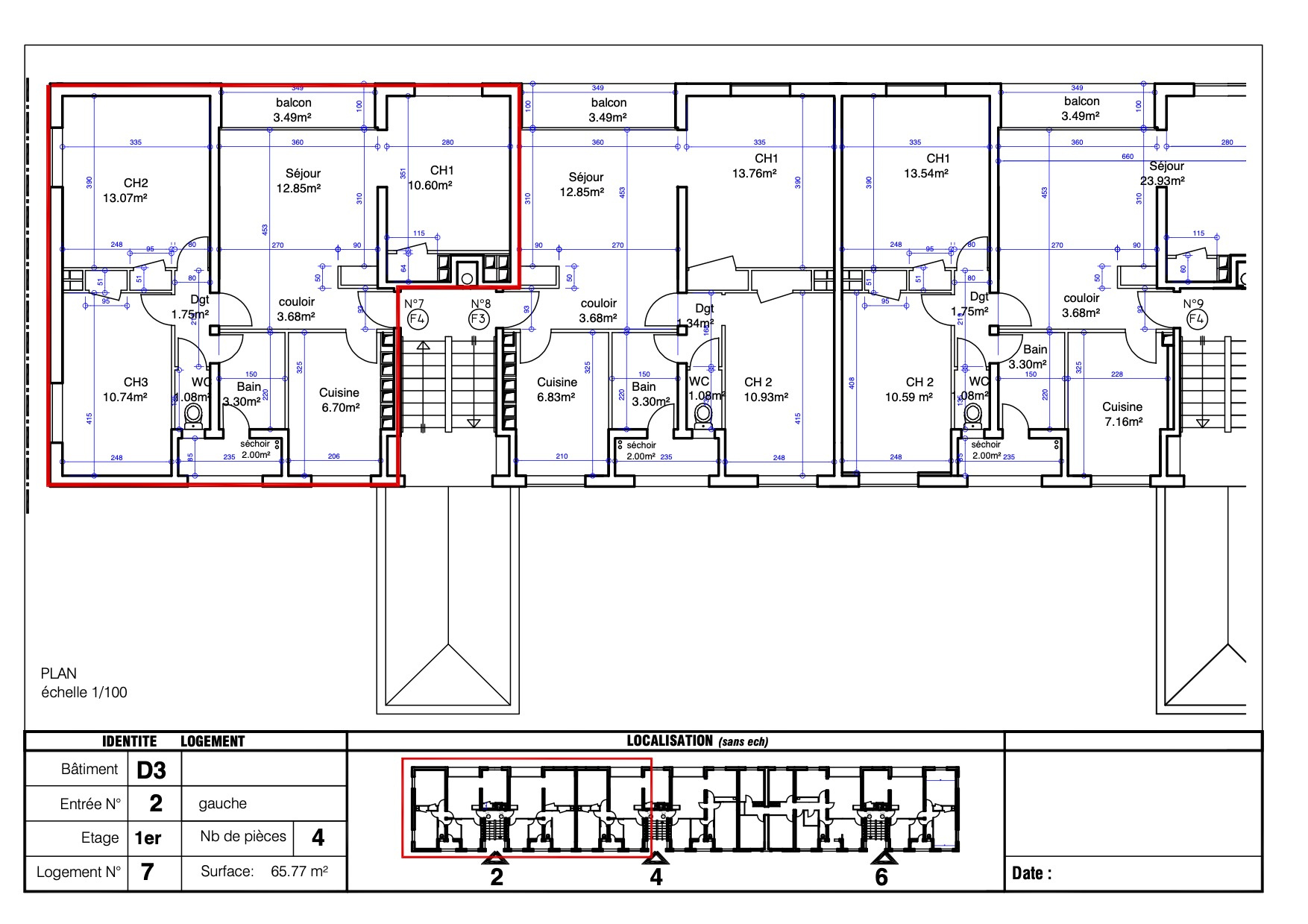
À saisir 74 000 EUR - T3 lumineux avec balcon et cave Mourenx Découvrez cet agréable appartement 3 pièces, idéalement situé dans un immeuble bien entretenu aux parties communes récemment rénovées, au coeur d'un environnement calme et proche de toutes commodités. Surface généreuse et bien agencée, comprenant :
Un séjour spacieux et lumineux Une grande cuisine équipée Deux chambres confortables Une salle de bains rénovée WC séparés Un balcon avec vue dégagée Une cave privative
Le bien est en bon état général, prêt à être habité ou loué immédiatement. Atouts supplémentaires :
Immeuble sain et suivi Quartier agréable et bien desservi Commerces, écoles et transports à proximité Idéal pour un premier achat ou un investissement locatif performant (Rendement brut potentiel supérieur à 8 %)
Ne tardez pas ! Opportunité rare à ce prix. Contactez-nous dès maintenant pour organiser une visite.