RUE DE TOCQUEVILLE Entre le Boulevard Pereire et le Boulevard Berthier
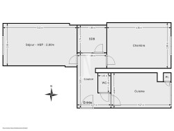
Au 4? étage d'un immeuble récent avec ascenseur, découvrez ce charmant deux-pièces lumineux et calme.Il se compose d'une entrée, d'un séjour agréable, d'une cuisine séparée et aménagée, d'une chambre donnant sur cour, ainsi que d'une salle de bains avec WC. Une cave complète ce bien.Chauffage et eau chaude collectifs. Présence d'un gardien dans l'immeuble.
Charges mensuel d'environ 300
Vous apprécierez la situation idéale, à proximité immédiate des commerces et parfaitement desservie par les transports (Bus 341, PC, 20, 94, N154, N155 arrêts Porte d'Asnières et Juliette Lamber ainsi que le tramway T3b Porte d'Asnières).
Un appartement fonctionnel, ensoleillé et au calme, à visiter sans tarder.
Médiateur de la consommation : ANM Conso - 2 rue de Colmar Vincennes 94300 - contact@anm-conso.com
Honoraires à la charge du vendeur. Dans une copropriété de 15 lots. Quote-part moyenne du budget prévisionnel 3 600 /an. Aucune procédure n'est en cours. Classe énergie D, Classe climat D Montant moyen estimé des dépenses annuelles d'énergie pour un usage standard, établi à partir des prix de l'énergie de l'année 2021 : entre 684.00 et 926.00 . Les informations sur les risques auxquels ce bien est exposé sont disponibles sur le site Géorisques : georisques.gouv.fr.
45.5 m²
9 209 €
2
1
1
1
4
Oui
Oui (15 lots)
Consommations énergétiques
Logement économe
182
Logement énergivore (kWhEP/m2/an)
Émissions de gaz à effet de serre
Faible émission de GES
38
Forte émission de GES(kgeqCO2/m2/an)
Contact Romain FEREY
Contacter gratuitement à l'aide du formulaire ci-dessous.