Honoraires à la charge de l'acquéreur (Prix hors honoraires : 38960 euros).
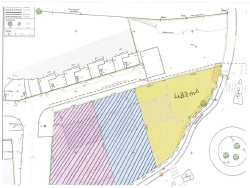
À découvrir avec TIGRE IMMOBILIER : un terrain constructible au coeur du Bavaisis ! D'une superficie de 487 m2, cette parcelle séduit par sa configuration fonctionnelle et sa façade de 10,58 m, idéale pour implanter votre future habitation. Situé dans un secteur très prisé, ce terrain non viabilisé reste aisément raccordable, vous permettant de concrétiser votre projet immobilier en toute simplicité.Pour tout complément d'information, n'hésitez pas à contacter votre conseillère en immobilier, Stéphanie LOCOCCIOLO, au 06 14 06 36 64. Les informations sur les risques auxquels ce bien est exposé sont disponibles sur le site Géorisques : www.georisques.gouv.fr TIGRE IMMOBILIER MAUBEUGE JEUMONT www.tigre-immobilier.fr - 0327649216 ou 0327582626
487 m²
88 €
487 m²
10.00 %
Oui
Contact LOCOCCIOLO
Contacter gratuitement à l'aide du formulaire ci-dessous.