Honoraires à la charge de l'acquéreur (Prix hors honoraires : 34960 euros).
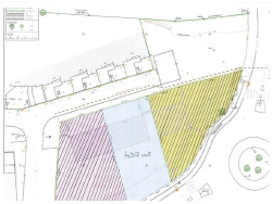
TIGRE IMMOBILIER vous présente une opportunité à saisir dans le Bavaisis ! Située dans un environnement paisible et recherché, cette parcelle de 437 m2 dispose d'une façade généreuse de 15,13 m, idéale pour concevoir une maison adaptée à vos envies. Non viabilisé mais facilement raccordable, ce terrain offre de belles perspectives pour concrétiser votre projet de construction dans un cadre agréable. Pour plus d'informations, contactez dès aujourd'hui votre conseillère en immobilier, Stéphanie LOCOCCIOLO, au 06 14 06 36 64. Les informations sur les risques auxquels ce bien est exposé sont disponibles sur le site Géorisques : www.georisques.gouv.fr TIGRE IMMOBILIER MAUBEUGE JEUMONT www.tigre-immobilier.fr - 0327649216 ou 0327582626
437 m²
88 €
437 m²
10.00 %
Oui
Contact LOCOCCIOLO
Contacter gratuitement à l'aide du formulaire ci-dessous.