À vendre ? Terrain à bâtir de 1 367 m² en plein c?ur d?Aix-les-Bains
Aix-les-Bains 73100
0
J'ai le plaisir de vous proposer, sur la commune d'Aix-les-Bains, une belle parcelle libre de constructeur de 1 367 m², offrant une vue agréable sur les montagnes.
Caractéristiques du terrain :
- Terrain avec une pente inférieure à 5 %
- Viabilité en bordure de route
- Zonage PLUi : UD
- Surface de construction : 362,5 m² (25 m x 14,5 m)
- Coefficient d'emprise au sol (CES) maximal : 218,72 m²
Parcelle issue d'une division parcellaire
Situation idéale :
- A seulement 1,8 km du centre-ville d'Aix-les-Bains
- 5 minutes de l'autoroute et de la gare
- Commerces et commodités à proximité
- École à 200 m et transports en commun à quelques pas
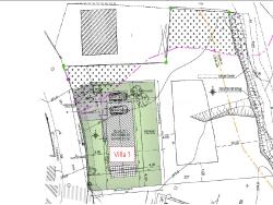
Possibilité de construction :
Une villa peut y être édifiée (voir plan proposé dans les photos)
Ne manquez pas cette occasion rare d'acquérir un terrain d'exception dans un quartier recherché d'Aix-les-Bains
Pour plus d'informations ou organiser une visite, contactez-moi dès aujourd'hui.
Cette annonce référence 299625 vous est présentée par votre agent commercial BSK Immobilier SANDRA LABBE (EI) immatriculé au RSAC de CHAMBERY (73000) sous le numéro 90821890200025.
Prix du bien : 470 000,00 €
Les honoraires d'agence sont à la charge du vendeur.
Les informations sur les risques auxquels ce bien est exposé sont disponibles sur le site Géorisques : www.georisques.gouv.fr
1367 m²
344 €
1367 m²
Contact SANDRA LABBE
Contacter gratuitement à l'aide du formulaire ci-dessous.