A vendre Dinard Maison 3 chambres 82.83 m² proche commerces et plages
Dinard 35800
0
Honoraires à la charge de l'acquéreur (Prix hors honoraires : 400000 euros).
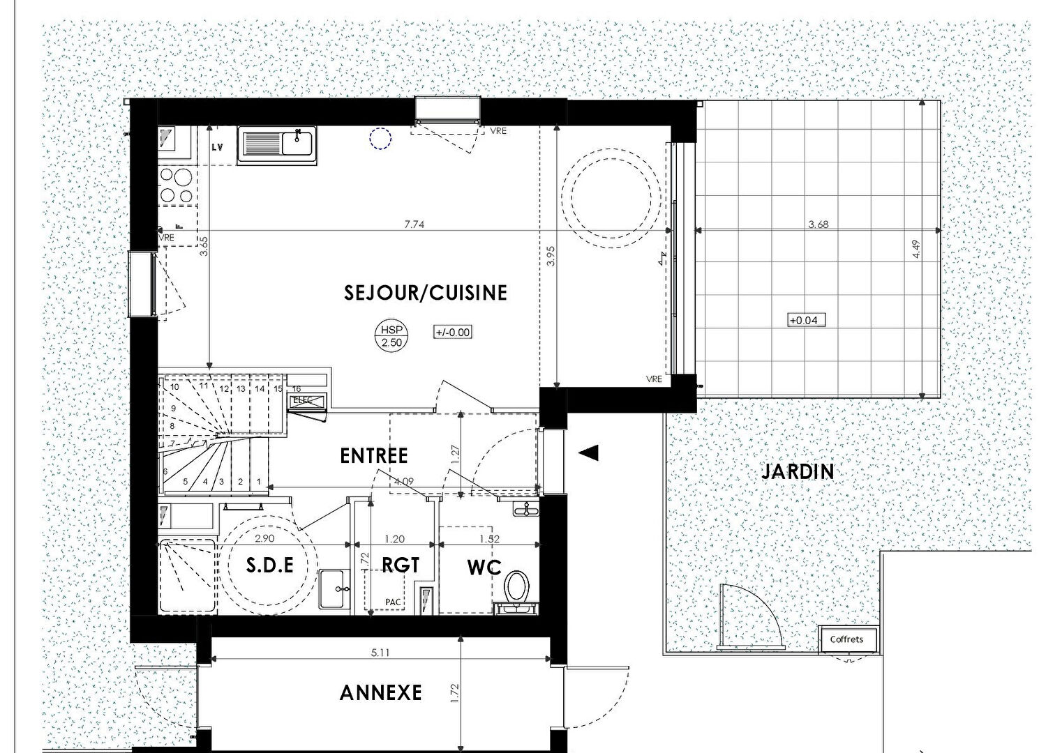
A vendre maison indépendante DINARD, 3 chambres, garage et parkings, 314 m² de terrain. Située dans un secteur recherché, à proximité immédiate des commerces et des plages, cette maison offre une configuration idéale pour une résidence principale ou secondaire. Au rez-de-chaussée, elle se compose d'un salon, séjour lumineux, cuisine, d'un WC indépendant ainsi que d'un accès direct au garage. A l'étage, un palier dessert trois chambres, une salle de bains et un second WC indépendant. Côté extérieur, vous profiterez d'une terrasse ouvrant sur un jardin exposé Sud-ouest, parfait pour les moments de détente en fin de journée. Le terrain d'une superficie d'environ 314 m², permet de profiter du jardin, nombreuses places de stationnement possible. A 800 mètres de la première plage et 850 mètres des premiers commerces, cette maison offre tout le confort de tout faire à pied. Pour toutes informations, contactez l'agence Emeraude 48 rue Levavasseur 35800 DINARD, référence 7665 - 0299461101 - contact@agenceemeraude.fr. (4.80 % honoraires TTC à la charge de l'acquéreur.) Copropriété de 21 lots - dont 21 lots habitation.(Pas de procédure en cours).