A vendre terrain libre constructeur de 411m² au coeur de AIX-LES-BAINS
Aix-les-Bains 73100
0
À vendre ? Terrain à bâtir de 411 m² en plein c?ur d'Aix-les-Bains
J'ai le plaisir de vous proposer, sur la commune d'Aix-les-Bains, une belle parcelle libre de constructeur de 411 m², offrant une vue agréable sur les montagnes.
Caractéristiques du terrain :
- Terrain avec une pente inférieure à 5 %
- Viabilité en bordure de route
- Zonage PLUi : UD
- Surface constructible : 112,5 m² (14,34 m x 7,84 m)
- Coefficient d'emprise au sol (CES) maximal : 86,31 m²
- Parcelle issue d'une division parcellaire
Situation idéale :
- À seulement 1,8 km du centre-ville d'Aix-les-Bains
- 5 minutes de l'autoroute et de la gare
- Commerces et commodités à proximité
- École à 200 m et transports en commun à quelques pas
Possibilité de construction :
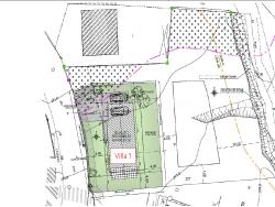
Une villa peut y être édifiée (voir plan proposé dans les photos).
Ne manquez pas cette occasion rare d'acquérir un terrain d'exception dans un quartier prisé d'Aix-les-Bains.
Pour plus d'informations ou organiser une visite, contactez-moi dès aujourd'hui.
Cette annonce vous est présentée votre agent commercial BSK Immobilier LEGRAND FREDERIC (EI) immatriculé au RSAC de CHAMBERY (73000) sous le numéro 929 623 544.
Les honoraires d'agence sont à la charge du vendeur.
Les informations sur les risques auxquels ce bien est exposé sont disponibles sur le site Géorisques : www.georisques.gouv.fr
Cette annonce référence 308572 vous est présentée par votre agent commercial BSK Immobilier FRÉDÉRIC LEGRAND (EI) immatriculé au RSAC de CHAMBERY (73000) sous le numéro 92962354400012.
Prix du bien : 170 000,00 €
Les honoraires d'agence sont à la charge du vendeur.
Les informations sur les risques auxquels ce bien est exposé sont disponibles sur le site Géorisques : www.georisques.gouv.fr
411 m²
414 €
411 m²
Contact FRÉDÉRIC LEGRAND
Contacter gratuitement à l'aide du formulaire ci-dessous.