Honoraires à la charge de l'acquéreur (Prix hors honoraires : 309500 euros).
Centre-ville des Clayes-sous-Bois Appartement 5 pièces traversant de 103 m²
Au coeur du centre-ville, au sein d'une petite copropriété, découvrez ce ravissant appartement traversant de 103 m², rénové avec soin et offrant de beaux volumes.
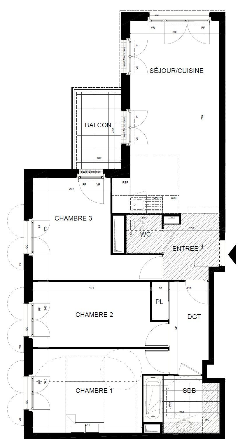
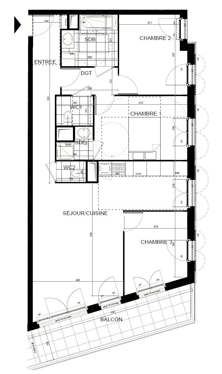
Situé au 1er étage, l'appartement s'ouvre sur une entrée avec rangements menant à un séjour/salle à manger, prolongée par un balcon exposé ouest, sans vis-à-vis. La cuisine est entièrement équipée et dispose d'un cellier attenant.
La partie nuit se compose de trois chambres, dont une suite avec salle d'eau, ainsi qu'une salle de bains et des WC indépendants.
L'appartement est en très bon état et bénéficie de prestations de qualité : fenêtres en double vitrage PVC, installation électrique récente, nombreux rangements et chauffage collectif au gaz compris dans les charges. Une cave et un parking complètent ce bien.
Emplacement privilégié, à seulement 8 minutes à pied de la gare de Villepreux Les Clayes-sous-Bois et à 1 minute du parc de Diane, avec toutes les commodités du centre-ville à proximité.
Contactez notre agence TAM Immobilier pour une visite de ce bien.
Honoraires inclus de 3.23% TTC à la charge de l'acquéreur. Prix hors honoraires 309 500 . Dans une copropriété de 64 lots. Aucune procédure n'est en cours. Classe énergie E, Classe climat E Montant moyen estimé des dépenses annuelles d'énergie pour un usage standard, établi à partir des prix de l'énergie de l'année 2023 : entre 2330.00 et 3190.00 . Les informations sur les risques auxquels ce bien est exposé sont disponibles sur le site Géorisques : georisques.gouv.fr.