AIX EN PROVENCE TERRAIN 356M2 +PROJET MAISON 94M2 (St Mitre)
Aix-en-Provence 13090
0
Honoraires à la charge du vendeur.
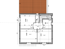
Expertimo a le plaisir de vous proposer ce magnifique terrain arboré de 356 m2 idéalement situé secteur résidentiel d'Aix en provence (St Mitre route d'Eguilles), proche du centre ville (7mn), bus ecoles et commerces. Un permis de construire à été obtenu pour ce projet captivant de villa contemporaine de 94 m2 avec étage. Cette construction comprendra un trés beau sejour lumineux de 47 m2 et une cuisine ouverte mettant en valeur de belles ouvertures sur une terrasse et jardin . L'alliance du désign moderne et de la fonctionnalité ! Vous trouverez 3 chambres à l'étage ainsi qu'une salle de bain et un WC indépendant. En annexe la maison posséde un garage (18m2). (terrain + projet maison = 504 000EUR) Nous sommes a votre disposition dés maintenant pour convenir d'un rendez-vous pour une visite et plus d'informations sur ce projet Votre contact : Eric Mauvais 06 63 78 77 20 Cette annonce vous est proposée par MAUVAIS Eric - EI - NoRSAC: 343 330 833, Enregistré à Greffe du tribunal de commerce de MARSEILLE - Annonce rédigée et publiée par un Agent Mandataire -
356 m²
815 €
47 m²
356 m²
4
3
1
2
30/01/2027
2025
Sud
1
1
1
Oui
Oui
Oui
Oui (3 lots)
Contact Eric MAUVAIS
Contacter gratuitement à l'aide du formulaire ci-dessous.