AIX EN PROVENCE TERRAIN 407 M2 + PROJET MAISON 88M2 (St Mitr
Aix-en-Provence 13090
0
Honoraires à la charge du vendeur.
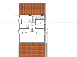
Expertimo a le plaisir de vous proposerce superbe terrain arboré de 407 m2 idéalement situé sur un secteur résidentiel d'Aix en provence (St Mitre, roure d'Eguilles), proche du cente ville (7mn), bus, ecoles et commerces. Un permis de construire a été obtenu pour ce projet captivant de villa contemporaine de 88 m2 avec étage. Cette construction comprendra en rez-de-chaussée: Un beau séjour lumineux de 39 m2, une chambre et une cuisine ouverte mettant en valeur de trés belles ouvertures sur une terrasse et le jardin. L'alliance du Design moderne et de la fonctionnalité ! Vous trouverez à l'étage 2 chambres ainsi qu'un coin bureaux / Dressing, une salle de bain et un WC indépendant. En annexe la maison possède un garage de 18m2. ( cout de la construction: 202 000 + Terrain = 492 000 EUR). Nous sommes a votre disposition dés maintenant pour convenir d'un rendez-vous pour une visite et plus d'informations sur ce projet. Votre Contact: Eric Mauvais 06 63 78 77 20 Cette annonce vous est proposée par MAUVAIS Eric - EI - NoRSAC: 343 330 833, Enregistré à Greffe du tribunal de commerce de MARSEILLE - Annonce rédigée et publiée par un Agent Mandataire -
407 m²
713 €
407 m²
4
3
1
2
30/01/2027
2025
Sud
2
1
1
Oui
Oui
Oui (3 lots)
Contact Eric MAUVAIS
Contacter gratuitement à l'aide du formulaire ci-dessous.