Aix-Les-Bains, grand appartement 4 pièces de 83.55 m2 a vend
Aix-les-Bains 73100
0
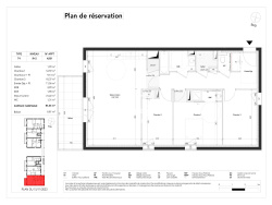
Aix-Les-Bains, grand appartement 4 pièces de 83.55 m2 a vendre Surface : 83.55 m2 Lot A201 2e étage
2 places de parking Balcon
La Belle Époque est une résidence à taille humaine proche du coeur de ville, de la gare et des rives du lac. Émaillé de haies végétalisées et arborées, l'ensemble résidentiel est composé d'appartements traversants, avec de larges ouvertures et une exposition est/ouest. Le soin apporté aux aménagements et aux équipements est un gage supplémentaire de confort, de sécurité et de sérénité.
Les atouts de la résidence
Construction RE2020 Haies végétalisées Stationnements couverts en rez-de-chaussée avec barrière levante Contrôle d'accès sécurisé avec ouverture à distance
Les prestations des appartements
Appartements du grand studio au 4 pièces Logements traversants Chauffage individualisé avec pompe à chaleur intégrée Revêtement de sol stratifié ou carrelage selon les pièces Volets roulants électriques
83.55 m²
5 613 €
4
3
1
1
2
1
2
Oui
Contact DURUISSEAU
Contacter gratuitement à l'aide du formulaire ci-dessous.