Ancien local professionnel avec annexes, aménageable en appa
Valence 26000
0
Honoraires à la charge du vendeur.
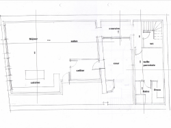
Situé en centre ville de Valence, ce bien est une belle opportunité d'investissement, par sa composition et sa surface, permettant de nombreuses possibilités. Le bien est à rénover ; il présente la possibilité de créer un appartement d'environ 162 m2 en aménageant le grenier en R+1 (voir plans fournis et composition ci-dessous). Un permis a été accordé par la mairie de Valence, nous consulter pour plus d'informations. La surface du bien se décompose en un local situé au rez-de-chaussée, comprenant 2 pièces donnant sur la rue Pont du Gât ainsi qu'une réserve, un bureau avec une belle hauteur sous plafond, un espace cuisine, une réserve et un atelier donnant sur la cour. Se rajoutent à ce local, un grenier à l'étage de 34,59 m2 et la jouissance d'une cour privative d'environ 20 m2, ainsi que 3 caves. Contactez-nous pour plus d'informations ! Nous pouvons vous accompagner dans l'estimation des travaux et autres conseils ! Les informations sur les risques auxquels ce bien est exposé sont disponibles sur le site Géorisques : www.georisques.gouv.fr - Annonce rédigée et publiée par un Agent Mandataire -
128.77 m²
769 €
4
51.5 € / mois
1950
Oui
Oui (18 lots)
Contact Camille VINOT
Contacter gratuitement à l'aide du formulaire ci-dessous.