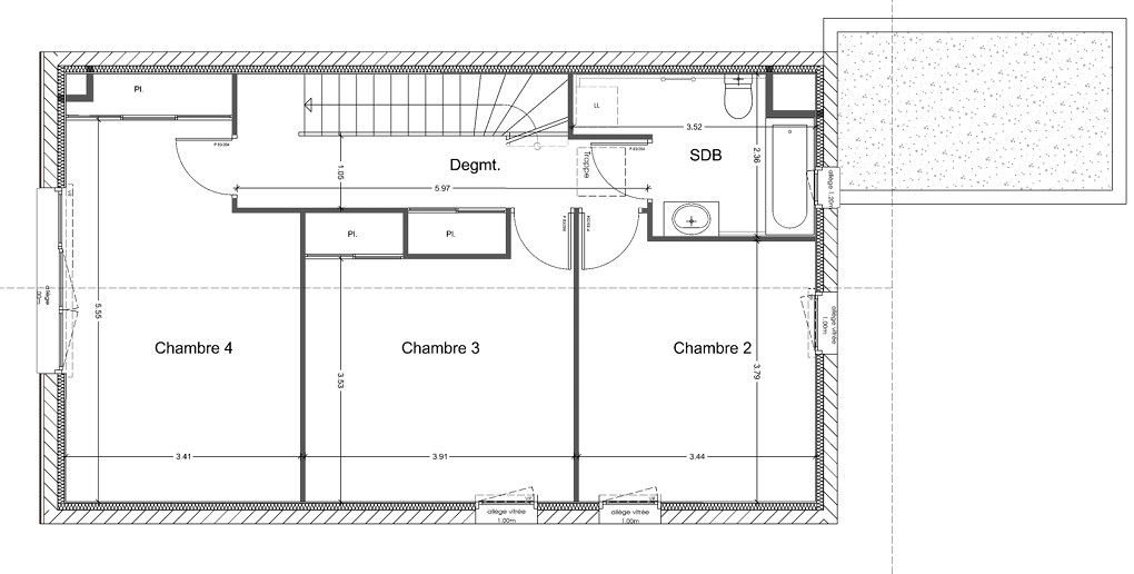
Située dans un environnement calme, cette charmante maison de village de 195m² est édifiée sur un terrain clos et arboré d'un peu plus de 1600m², offrant de nombreux espaces extérieurs et annexes. En rez-de-jardin, une grande pièce de 30m² peut accueillir une activité libérale, une salle de détente ou encore être transformée en studio de plain-pied. Un atelier et une cave complètent ce niveau. Une terrasse sur pilotis avec vue montagnes donne accès direct aux pièces de vie et constitue un espace de vie complémentaire durant la belle saison. La cuisine aménagée avec îlot central est ouverte sur le séjour aux volumes généreux et à la luminosité appréciable. Dans le prolongement, le salon est équipé d'une cheminée avec insert permettant de réchauffer l'ambiance durant la période hivernale. Les poutres du plafond et les murs en pierre locale rappellent l'origine de cette grange transformée en habitation. Une salle de bains avec baignoire d'angle et douche partage ce niveau. L'étage supérieur est occupé par trois belles chambres lumineuses ainsi qu'une salle d'eau. Les combles ont été récemment aménagés en une grande salle de jeux lumineuse pouvant être utilisée en chambre, ainsi qu'en bureau. A l'extérieur, le grand terrain clos offre un garage, un bûcher et un carport, auxquels s'ajoutent un espace potager et un poulailler. Pour agrémenter le tout, une piscine et sa cuisine d'été abritée trônent au milieu du jardin. A mi-chemin entre Grenoble, Chambéry et Albertville, cette maison au calme est parfaite pour allier vie de famille et vie professionnelle. CLASSE ENERGIE : D / CLASSE CLIMAT : B Montant moyen estimé des dépenses annuelles d'énergie pour un usage standard, établi à partir des prix de l'énergie de l'année 2024 : entre 2030 Euros et 2810 Euros. Les informations sur les risques auxquels ce bien est exposé sont disponibles sur le site Géorisques : www.georisques.gouv.fr. Contact : Mikael 06.69.58.48.15 Mikael PRAVERT (EI) Agent Commercial - Numéro RSAC : 439308891 - Chambery.