En exclusivité: Charmant appartement au coeur du 7eme arr. Rue Surcouf.
Rare
A rénover.
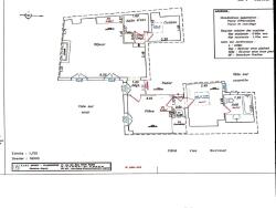
Très beau potentiel pour cet appartement de 56,5 m2 (surface loi Carrez) situé au quatrième et dernier étage sans ascenseur.
Lumineux par son orientation (Est et Sud), ses nombreuses fenêtres et sa situation en étage élevé.
Au calme.
Deux lots : deux portes palières, deux wc.
Une belle pièce de vie avec sa cheminée d'époque, une chambre et une autre pièce (bureau/dressing/petite chambre d'enfant).
Chauffage individuel au gaz.
Une cave.
DPE : F
Les informations sur les risques auxquels ce bien est exposé sont disponibles sur le site Géorisques.
Situé dans une copropriété comptant 31 lots d?habitation, pour un montant moyen trimestriel des dépenses courantes de 634 €.
En attente de la taxe foncière.
À propos du prix : 679 800 € Honoraires de 3% du prix du bien TTC inclus à la charge de l'acquéreur.
Prix du bien hors honoraires : 660 000 €
Plus de photos et informations sur demande.
Bien présenté par Agences de France par délégation.
Agences de France ? SIREN : 899413603 ? Titulaire de la carte T : 29012021000000009 non habilité à percevoir des fonds
57 m²
11 926 €
3
1
Consommations énergétiques
Logement économe
377
Logement énergivore (kWhEP/m2/an)
Émissions de gaz à effet de serre
Faible émission de GES
12
Forte émission de GES(kgeqCO2/m2/an)
Contact SOPHIE DORLENCOURT
Contacter gratuitement à l'aide du formulaire ci-dessous.