Appartement 2 chambres - Quartier des Roses - garage et cave
Les Sables-d'Olonne 85100
0
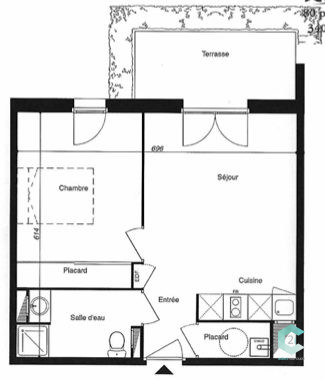
APPARTEMENT AVEC GARAGE INDEPENDANT ET CAVE : une superbe opportunité ! Votre agence PROJETS CLES est heureuse de vous présenter cet appartement à fort potentiel situé dans le charmant quartier Les Roses, aux Sables d'Olonne, en Vendée. Cet appartement de 65,40m2, à rénover, se trouve dans un immeuble des années 70, offrant un cadre de vie agréable et une situation idéale : alliance de la tranquillité et proximité du centre-ville ainsi que de la plage. Situé dans un quartier calme et résidentiel, cet appartement se compose d'une pièce de vie lumineuse exposée sud-ouest, idéale pour profiter de la lumière naturelle tout au long de la journée. La cuisine séparée offre de nombreuses possibilités d'aménagement pour devenir un espace fonctionnel et convivial. Les deux chambres de l'appartement sont de belle taille et peuvent être aménagées selon vos besoins. La salle d'eau et les toilettes indépendantes complètent ce bien. Bien que des travaux de rénovation soient à prévoir, cet appartement représente une excellente opportunité d'investissement et de personnalisation selon vos goûts et besoins. Cet appartement dispose d'un garage indépendant ainsi qu'une cave privative.
Les + de cet appartement :
Grande luminosité dans la pièce de vie Situation géographique Potentiel de rénovation pour créer votre espace de vie
Logement libre de suite.
Prix Honoraires d'Agence Inclus : 139 100EUR dont 7.00% d'honoraires à la charge de l'acquéreur, soit 9 100EUR TTC. Prix net vendeur : 130 000EUR.
A propos de la copropriété : Pas de procédure en cours. Nombre de lots : 52. Charges prévisionnelles annuelles : 1 320 EUR. Date de réalisation du diagnostic énergétique : 22/03/2024.
Contactez rapidement votre conseillère Julie au 06 59 32 47 92. Montant estimé des dépenses annuelles d'énergie pour un usage standard : entre 1 680 EUR et 2 330EUR par an. Prix moyens des énergies indexés sur l'année 2021 (abonnements compris) Les informations sur les risques auxquels ce biens est exposé sont disponibles sur le site Géorisques : www.georisques.gouv.fr
Agence indépendante notre priorité : votre satisfaction ! Ne détenant pas de fond. Rejoignez-nous aussi sur Facebook et faites profiter vos amis de nos différentes annonces : maisons, terrains, appartements à vendre sur le secteur du pays des Achards, Les Achards et ses alentours. Contactez votre conseillère Projets Clés - Les Achard- Quartier la Chapelle Achard : Julie Mocquais au 06 59 32 47 92Agence indépendante - notre priorité : votre satisfaction !Ensemble réalisons votre projet !Rejoignez-nous aussi sur Facebook et faites profiter vos amis de nos différentes annonces : maisons, terrains, appartements à vendre sur le secteur du pays des Achards, la Mothe Achard et ses alentours.
65.4 m²
2 127 €
3
2
1
1
1970
Oui
Oui
1
Consommations énergétiques
Logement économe
329
Logement énergivore (kWhEP/m2/an)
Émissions de gaz à effet de serre
Faible émission de GES
88
Forte émission de GES(kgeqCO2/m2/an)
Contact PROJETS CLÉS
Contacter gratuitement à l'aide du formulaire ci-dessous.