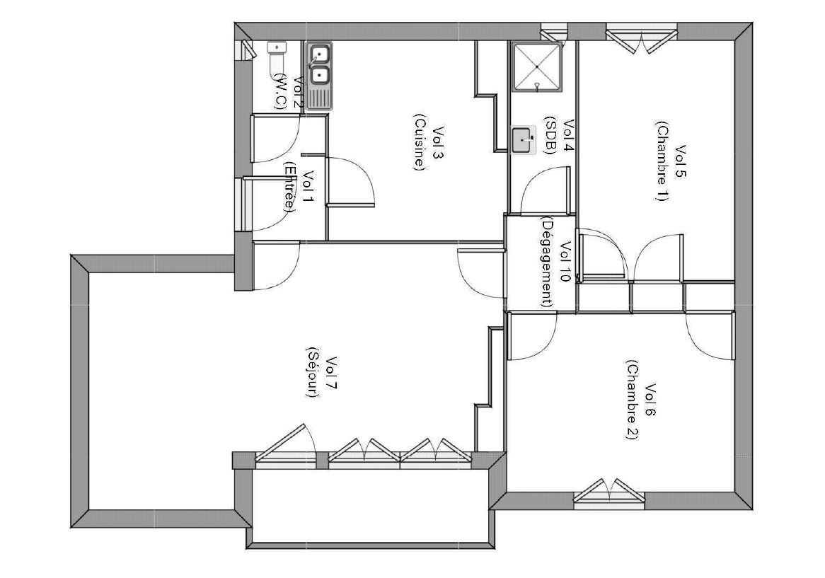
Située au coeur de Létra, cet appartement de 89 m² loi Carrez (101 m² au sol) saura vous séduire par ses beaux volumes et son emplacement idéal, à proximité immédiate des commodités. Au rez-de-chaussée, vous découvrirez une spacieuse pièce de vie lumineuse avec cuisine équipée, parfaite pour partager des moments conviviaux. Un cellier et un WC indépendant complètent ce niveau. À l'étage, deux belles chambres, une salle de bains équipée à la fois d'une douche et d'une baignoire, ainsi qu'un second WC offrent tout le confort nécessaire. Une troisième chambre est facilement aménageable selon vos besoins. Côté extérieur, profitez d'une superbe terrasse de 42 m², entièrement clôturée, idéale pour vos repas en plein air et vos moments de détente. La maison dispose également de deux places de stationnement privatives.
Les atouts :? Emplacement idéal, proche des commerces et services? Belle terrasse sans vis-à-vis? Possibilité de créer une 3? chambre
Une opportunité rare sur le secteur, à visiter sans tarder ! ? Contactez Virginie COLLOMB au 06.08.70.14.49 pour plus d'informations.
Honoraires à la charge du vendeur. Dans une copropriété de 6 lots. Aucune procédure n'est en cours. Classe énergie C, Classe climat C Montant estimé des dépenses annuelles d'énergie pour un usage standard : entre 1030.00 et 1460.00 sur les années 2021, 2022 et 2023 (abonnements compris). Les informations sur les risques auxquels ce bien est exposé sont disponibles sur le site Géorisques : georisques.gouv.fr.
Votre conseiller La première Agence : Virginie COLLOMB Agent commercial (Entreprise individuelle) RSAC 824 784 383
Duplex
89.95 m²
2 412 €
3
2
1
2 (séparés)
Nord
1
Oui (6 lots)
Consommations énergétiques
Logement économe
101
Logement énergivore (kWhEP/m2/an)
Émissions de gaz à effet de serre
Faible émission de GES
23
Forte émission de GES(kgeqCO2/m2/an)
Contact La première Agence
Contacter gratuitement à l'aide du formulaire ci-dessous.