Honoraires à la charge de l'acquéreur (Prix hors honoraires : 139500 euros).
Les charges de location sont prévisionnelles mensuelles avec régularisation annuelle.
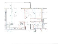
Dans résidence de standing en construction aux portes de Pau sur la commune de Lescar, agréable T2 de 49.50 m2 (lot 8) avec terrasse sans vis a vis au 1er étage , exposé au nord situé dans une petite copropriété, dans un secteur calme.. Il se compose d'une cuisine à équiper et aménager, ouverte sur séjour , une chambre ,une salle d'eau et toilette séparé ainsi qu'un cellier. L'appartement est vendu avec une place de parking . Idéalement situé par rapport aux commodités et axes routiers importants.. LIBRE COURANT 2026 . A voir sans tarder. Taxe locale d'équipement de 4300 euros. Provision association syndicale 300 euros.
Honoraires inclus de 7.17% TTC à la charge de l'acquéreur. Prix hors honoraires 139 500 . DPE en cours. Les informations sur les risques auxquels ce bien est exposé sont disponibles sur le site Géorisques : georisques.gouv.fr.
50 m²
2 990 €
2
1
1 sur 1
7.17 %
2022
Contact CLAUDE ESCOFET
Contacter gratuitement à l'aide du formulaire ci-dessous.