Appartement 2 pièces en pleine nature - Lacanau Lac
Lacanau 33680
0
La Résidence Les Voiles de l'Escourette offre un cadre de vie unique en lisière de forêt, située entre le lac et océan.À seulement 300 mètres de la plage surveillée de la Grande Escoure et proche de diverses activités de loisirs (voile, golf, ...), cette petite résidence promet calme et tranquillité idéaux pour les familles.La résidence sécurisée, de taille intimiste, comprend 8 logements variant du T2 au T3, avec des prix débutant à 264 500 euros.La résidence est parfait pour ceux qui cherchent un pied à terre entrelac et océan, combinant confort et proximité avec la nature. Cette annonce vous est proposée par Lucine JONTE Agent Commercial RSAC de Dax sous le numéro 832 835 573. - Annonce rédigée et publiée par un Agent Mandataire -
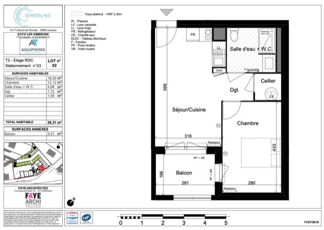
48 m²
5 510 €
8 m²
25 m²
2
1
1
1
1 sur 1
Sud
1 (8 m²)
1
Oui (8 lots)
Contact Lucine JONTE
Contacter gratuitement à l'aide du formulaire ci-dessous.