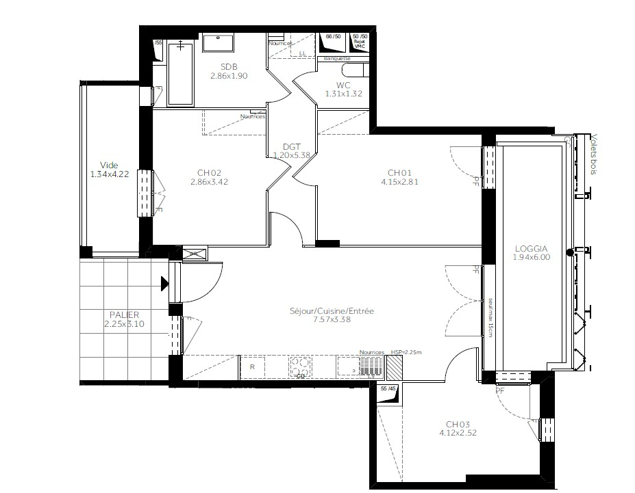
<p>Situé dans une petite copropriété de 3 lots, cet appartement de 108 m² est un véritable coup de c?ur. Niché au deuxième et dernier étage d'un charmant bâtiment en pierres dorées, il offre une vue imprenable sur les toits du village. </p><p><strong>Une vaste et lumineuse pièce de vie de 45 m²</strong>, incluant l'entrée, ouverte sur une loggia de 15 m², parfaite pour profiter de la vue et des belles journées ensoleillées.</p><p><strong>Une cuisine entièrement équipée</strong>, moderne et fonctionnelle, idéale pour préparer vos repas tout en restant connecté à l'espace de vie.</p><p><strong>Trois chambres</strong>, dont une avec un grand dressing, offrant un espace privé confortable et pratique.</p><p><strong>Une grande salle de bains</strong>, équipée d'une baignoire et d'une douche, pour un maximum de confort et de détente.</p><p>La <strong>rénovation soignée</strong> a préservé le caractère de l'ancien tout en offrant des prestations modernes : <strong>hauteurs sous plafond</strong>élégantes, <strong>poêle à granulés</strong> pour une chaleur douce et agréable, et des matériaux de qualité pour un cadre de vie agréable.</p><p>Ce bien rare est idéalement situé dans le village recherché de Lacenas, offrant une atmosphère paisible tout en étant à proximité des commodités locales. Un endroit idéal pour ceux qui recherchent l'authenticité et le confort dans un cadre privilégié.</p><p><strong>À découvrir sans tarder !</strong> Contactez-moi</p><p> <em>06 42 48 96 21</em>
<em>sylvie.queiros@remax.fr</em><strong>Sylvie Queiros ? Agent Commercial en Immobilier, EI</strong><strong>RSAC n°517 633 335</strong> </p>
Honoraires à la charge du vendeur.
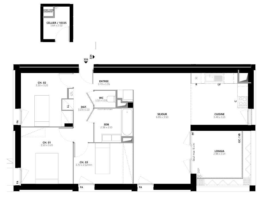
Bien en copropriété : 3 lots.
Montant moyen annuel de la quote-part de charges courantes : 536 €.
Nombre de procédure en cours: --.
Les informations sur les risques auxquels ce bien est exposé sont disponibles sur le site Géorisques : www.georisques.gouv.fr .
108 m²
2 315 €
4
3
1
1
1900
Oui
Consommations énergétiques
Logement économe
258
Logement énergivore (kWhEP/m2/an)
Émissions de gaz à effet de serre
Faible émission de GES
8
Forte émission de GES(kgeqCO2/m2/an)
Contact QUEIROS Sylvie
Contacter gratuitement à l'aide du formulaire ci-dessous.