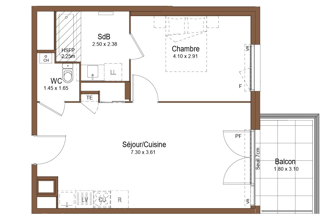
Exclusivité César et Brutus - Saint-Fons centre. Je vous propose à la vente, cet appartement de 68 m² situé au rez-de-chaussée, sur cour dans une résidence de 2013 calme, arborée et sécurisée. Il se compose d'une entrée avec placard, d'une belle pièce de vie avec cuisine meublée et équipée et donnant accès à un balcon de 10 m², de deux chambres dont une avec dressing et donnant accès à une terrasse, d'une salle de bains ainsi qu'un WC séparé.
L'appartement est traversant et exposé Est/Ouest ce qui lui assure une belle luminosité ! Un garage box est disponible en supplément (+20000). L'appartement sera disponible au plus tard en Avril 2025.
Charges mensuelles : 121 comprenant entretien des parties communes, eau froide, entretien chaudière et ascenseur Copropriété de 96 lots, dont 45 d'habitation Pas de procédure en cours. Taxe foncière : 1273 DPE : C / GES : C
REF : MG-7963
Plusieurs écoles (maternelle, élémentaire, primaire et lycée) se trouvent à moins de 10 minutes à pied. Niveau transports, il y a cinq lignes de bus ainsi que la gare Saint-Fons dans un rayon de 1 km. Alors, vous êtes tenté de le visiter ? Contactez moi Margaux : 07 70 45 62 87 (819 206 160 R.S.A.C Lyon) margaux@cesaretbrutus.com Les informations sur les risques auxquels ce bien est exposé sont disponibles sur le site Géorisques : www.georisques.gouv.fr
Honoraires à la charge du vendeur. Dans une copropriété de 96 lots. Quote-part moyenne du budget prévisionnel 1 452 /an. Aucune procédure n'est en cours. Classe énergie C, Classe climat C Montant moyen estimé des dépenses annuelles d'énergie pour un usage standard, établi à partir des prix de l'énergie de l'année 2021 : entre 650.00 et 920.00 . Les informations sur les risques auxquels ce bien est exposé sont disponibles sur le site Géorisques : georisques.gouv.fr.