Goodshowcase

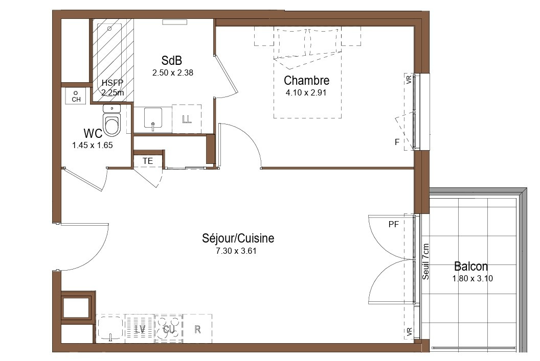
Vente appartement 3 pièces
209 000 €

Contact Aksens - Solutions Immobilières

Contacter gratuitement à l'aide du formulaire ci-dessous.


Afficher le téléphone


Annonces similaires

Vente appartement

Saint-Fons 69190 - 0

232 000 €

...Une place de parking est vendue avec l'appartement Bâtiment basse consommation Contactez Grégory...

Voir l'annonce

Vente appartement

Saint-Fons 69190 - 0

170 000 €

...Il se compose d'un séjour lumineux donnant accès à une agréable terrasse de 9 m², idéale pour...

Voir l'annonce

Vente appartement

Saint-Fons 69190 - 0

179 000 €

...Vous profiterez d'une vue dégagée exceptionnelle sur Lyon et la basilique de Fourvière, sans...

Voir l'annonce

Vente appartement

Saint-Fons 69190 - 0

179 000 €

...D'une surface de 64 m², cet appartement offre une entrée avec placard, une pièce de vie lumineuse...

Voir l'annonce

Vente appartement

Saint-Fons 69190 - 0

230 000 €

...Il se compose d'un séjour lumineux, de deux chambres confortables, d'une salle de bain équipée à...

Voir l'annonce