CORSE PATRIMOINE IMMOBILIER a le plaisir de vous proposer ce beau projet à deux pas des plages, du port et des commerces, découvrez un cadre de vie unique en Corse-du-Sud. APPARTEMENTS DU T1 AU T3 - Loggias généreuses et possibilité de fusionner les lots - Architecture moderne, finitions haut de gamme et espaces verts paysagers. UN PROMOTEUR RECONNU - Présent depuis longtemps sur le secteur, avec de nombreuses et belles réalisations - Gage de qualité, de sérieux et de fiabilité. AVANTAGES CLÉS - Éligible au Prêt à Taux Zéro - Frais de notaire réduits - Investissement sécurisé avec forte demande locative. PROPRIANO, un emplacement d'exception. Nichée entre Ajaccio et Bonifacio, Propriano séduit par son climat doux, ses paysages préservés et son authenticité corse. Cette destination recherchée offre un cadre de vie idéal, que ce soit pour une résidence principale, secondaire ou un investissement locatif. Entre mer et montagne, votre futur logement bénéficie d'un fort potentiel de valorisation, alliant plaisir de vivre et sécurité patrimoniale. RÉSIDENCE MARINE 2 : conjuguez art de vivre méditerranéen et investissement sûr ! À quelques pas seulement, laissez-vous séduire par le charme de la mer et l'animation d'un quartier vivant. Les plages s'offrent à vous pour des instants de détente, tandis que les commerces, restaurants et le port de plaisance avec son embarcadère ferry se rejoignent aisément à pied. Petits et grands trouveront leur bonheur : aires de jeux conviviales, structures scolaires et équipements sportifs complètent harmonieusement ce cadre de vie, idéal pour conjuguer douceur du quotidien et dynamisme urbain. Informations complètes sur demande. Les informations sur les risques auxquels ce bien est exposé sont disponibles sur le site Géorisques : www.georisques.gouv.fr
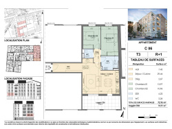
72.95 m²
4 318 €
29 m²
3
2
1
1
Sud
1
Oui
Oui (45 lots)
Contact Corse Patrimoine Immobilier
Contacter gratuitement à l'aide du formulaire ci-dessous.