Appartement 3 pièces à Paris - Parc Montsouris (75014)
Paris 75014
0
Honoraires à la charge du vendeur.
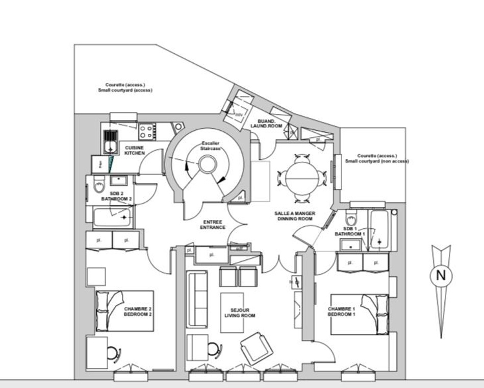
Magnifique appartement de 3 pièces, d'une surface de 88 m², situé au cœur du quartier paisible du Parc de Montsouris dans le 14ème arrondissement de Paris.
Cadre de vie exceptionnel en face du parc Montsouris. Superbe appartement LUMINEUX, TRAVERSANT et CALME, disposant de 2 BALCONS. Il comprend : une entrée, un double séjour donnant sur balcon, une cuisine indépendante, deux chambres dont une donnant sur un 2ème balcon, 2 salles de bains. 2 WC. Une cave. Parking en sus.
VIS A VIS LOINTAIN, donnant directement sur la VERDURE de la paisible cour de la copropriété. La nature est omniprésente avec le parc Montsouris de l'autre coté de la rue.
Parking en sus disponible.
Les informations sur les risques auxquels ce bien est exposé sont disponibles sur le site Géorisques : www.georisques.gouv.fr
88 m²
10 057 €
29 m²
4
2
2
3
1 sur 2
1977
Est
1
Oui
Oui
Oui
Consommations énergétiques
Logement économe
323
Logement énergivore (kWhEP/m2/an)
Émissions de gaz à effet de serre
Faible émission de GES
67
Forte émission de GES(kgeqCO2/m2/an)
Contact Solène DA SILVA
Contacter gratuitement à l'aide du formulaire ci-dessous.