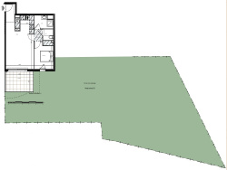
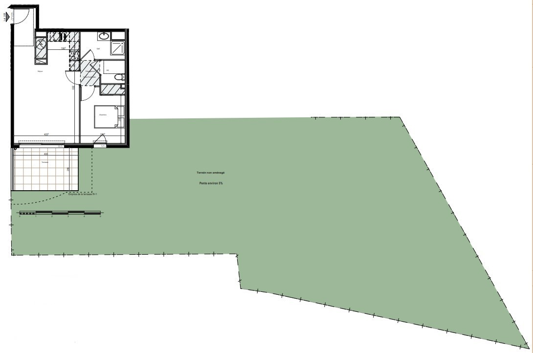
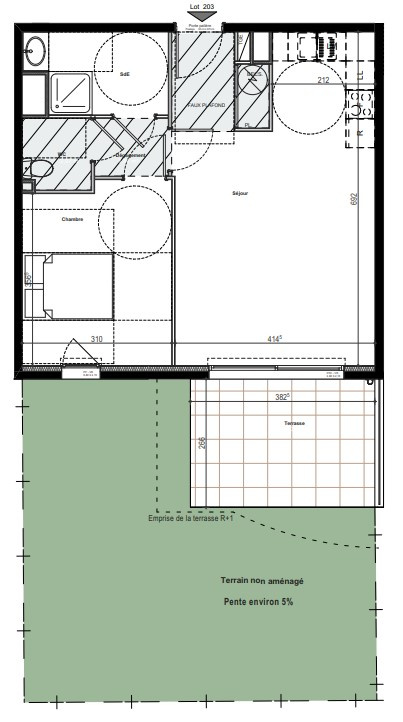
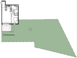
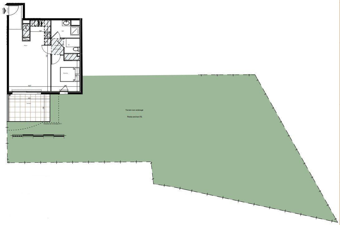
PUGET SUR ARGENS (83480) - Vente Appartement 3 pièces avec terrasse, jardin et 2 emplacements de parking dans résidence récente ! Au calme dans une résidence récente (5ans) située à proximité du centre-village de Puget-sur-Argens, et à 6/7 kms environs de Fréjus, son port de plaisance et ses plages. Un appartement de type T3 (66.31m2 loi carrez) avec terrasse, jardin et 2 emplacements de parking. Description de l'appartement : Vous y découvrirez un spacieux séjour avec sa cuisine aménagée et équipée d'environ31 m2 (four - plaque - hotte - frigidaire - lave-vaisselle) donnant sur une terrasse couverte et un jardinet, un couloir qui dessert le coin nuit avec 2 chambres (10.44m2-12.68m2) dont une avec placard donnant sur le jardinet, une belle salle de bains avec double vasques et sèche serviettes, et wc séparés (arrivées et évacuations des eaux). 2 emplacements de parking, une terrasse couverte et 2 emplacements de parking viennent compléter ce bien. Cuisine équipée - Fenêtres PVC double vitrage volets roulants électriques chauffage électrique Interphone Digicode 2 emplacements de parking privatifs - Terrasse couverte - Jardinet Très rare ! - Annonce rédigée et publiée par un Agent Mandataire -
66.31 m²
3 996 €
31 m²
3
2
1
1
2020
2
Oui
Oui (120 lots)
Consommations énergétiques
Logement économe
66
Logement énergivore (kWhEP/m2/an)
Émissions de gaz à effet de serre
Faible émission de GES
2
Forte émission de GES(kgeqCO2/m2/an)
Contact Jean-Marie Angeli
Contacter gratuitement à l'aide du formulaire ci-dessous.