APPARTEMENT 3 PIÈCES DERNIER ÉTAGE, TERRASSE ET PARKING
Le Bouscat 33110
0
Honoraires à la charge du vendeur.
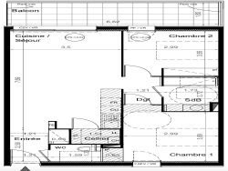
Idéalement situé à deux pas du tramway et de l'ensemble des commodités, au sein d'une petite résidence intimiste de 10 lots, découvrez ce bel appartement 3 pièces de 66 m², situé au 2? et dernier étage, offrant un cadre de vie confortable et recherché.
L'entrée, équipée d'un placard, dessert un WC indépendant, puis s'ouvre sur une grande pièce de vie lumineuse, pensée comme un espace convivial et fonctionnel, largement ouverte sur un bel extérieur de plus de 12 m², idéal pour profiter d'un prolongement vers l'extérieur. Le coin nuit propose deux chambres avec placards, ainsi qu'une salle de bains, offrant une organisation pratique au quotidien. Le bien dispose également d'un cellier situé sur le palier.
Une place de parking couverte et sécurisée complète ce bien en SUS.
Un appartement agréable à vivre, alliant fonctionnalité, luminosité et emplacement de choix.
Honoraires à la charge du vendeur. Dans une copropriété de 10 lots. Aucune procédure n'est en cours. Non soumis au DPE. Les informations sur les risques auxquels ce bien est exposé sont disponibles sur le site Géorisques : georisques.gouv.fr.
65 m²
4 246 €
27.00 m²
3
2
1
1 (séparé)
2 sur 2
Oui
Oui
1
1
Oui
Oui (10 lots)
Contact Mathieu AUBERT
Contacter gratuitement à l'aide du formulaire ci-dessous.