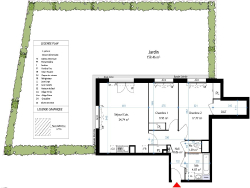
Dans le centre de La Verpillière, au pied des commerces, je vous propose à la vente ce magnifique T3 de 66,78m² qui saura vous séduire par sa situation, son séjour avec sa cuisine américaine donnant sur un beau jardin de 159,46m² . Il est également composé d'une salle de bains, de deux chambres, ainsi qu'un WC indépendant. Un garage en sous-sol est vendu avec l'appartement ainsi qu'une place de parking Bâtiment basse consommation Contactez Gregory pour plus d'informations Visuel non contractuel Copropriété de 180 lots. Charges annuelles : 950 euros.