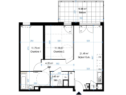
Dans le centre de La Verpillière, au pied des commerces, je vous propose à la vente ce ravissant T3 qui saura vous séduire par sa situation, son séjour avec sa cuisine américaine donnant sur une belle terrasse de 10.88m². Il est également composé d'une salle de bains, de deux chambres, ainsi qu'un WC indépendant. Un garage en sous-sol est vendu avec l'appartement ainsi qu'une place de parking Bâtiment basse consommation Contactez Gregory pour plus d'informations Visuel non contractuel Copropriété de 180 lots (Pas de procédure en cours). Charges annuelles : 900 euros.