95490 VAUREAL - VILLAGE -APPARTEMENT 3 PIECES - 2 CHAMBRES - 62.5m² CARREZ (85m² AU SOL) -
CHARME DE L'ANCIEN
EffiCity, l'agence qui estime votre bien en ligne, vous propose ce charmant appartement situé à Vaureal, offrant une ambiance campagne à seulement 3 minutes de toutes les commodités.
Ressemblant à une maison de ville, cet appartement bénéficie de faibles charges de 54 euros/mois.
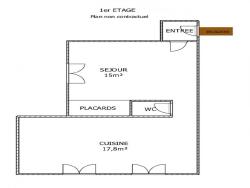
Il se compose d'UNE ENTREE, D'UN SEJOUR avec RANGEMENTS, de TOILETTES et d'UNE CUISINE RECENTE, EQUIPEE ET AMENAGEE.
A l'étage, vous trouverez 2 CHAMBRES, UNE SALLE DE BAIN avec TOILETTES
À 10 minutes à pied vous trouverez tout ce dont vous avez besoin au quotidien : écoles, commerces, piscine, restaurants, cinéma.
A seulement 8 minutes en voiture du RER A et à la ligne L pour PARIS ET LA DEFENSE.
N'attendez plus pour découvrir ce bel appartement. Contactez dès maintenant Catherine BLOUIN au 0646307213 pour organiser une visite.
Les informations sur les risques auxquels ce bien est exposé sont disponibles sur le site Georisque : georisques. gouv. fr
Catherine Blouin - EI - est Agent Commercial mandataire en immobilier, immatriculé au Registre Spécial des Agents Commerciaux du Tribunal de Commerce de Pontoise sous le n°852432491.
Siège social du mandant : effiCity, 48 avenue de Villiers - 75017 PARIS - Société par Actions Simplifiée, société au capital de 132 373,05 euros, immatriculée au RCS Paris 497 617 746 et titulaire de la Carte professionnelle CPI 7501 2015 000 002 025 - CCI Paris IDF - Caisse de Garantie : GALIAN Assurances 89 rue de la Boétie 75008 Paris
62 m²
3 371 €
15 m²
3
2
1
2
1 sur 3
Sud
Oui
Oui
Consommations énergétiques
Logement économe
307
Logement énergivore (kWhEP/m2/an)
Émissions de gaz à effet de serre
Faible émission de GES
10
Forte émission de GES(kgeqCO2/m2/an)
Contact Mme Catherine Blouin
Contacter gratuitement à l'aide du formulaire ci-dessous.