95490 - VAUREAL - COEUR DE VILLE - 3 PIECES - 2 CHAMBRES - 53m² - APPARTEMENT AVEC TERRASSE DE 25m² - CALME ?SANS VIS A VIS ?
EffiCity, l'agence qui estime votre bien en ligne, vous propose ce bel appartement en excellent état de 53m² en rez- de chaussée disposant d'une terrasse de 25m² au calme et sans vis-à-vis, donnant sur l'arrière de la résidence.
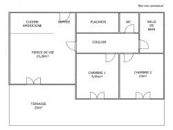
Il se compose d'une entrée donnant sur une pièce de vie, de plus de 23m² avec cuisine américaine et séjour donnant accès à la terrasse.
Un couloir avec rangements dessert 2 HAMBRES, UNE SALLE DE BAIN et des toilettes séparés.
Les 2 chambres donnent également accès à la terrasse.
A cela s'ajoute une place de stationnement en sous-sol.
La résidence est bien entretenue et sécurisée. Aucuns travaux ne sont à prévoir
Charges 136 euros/mois
A 2 minutes à pied des commerces, des restaurants, du cinéma, de la piscine et des écoles.
A proximité également des BUS, et du RER A et de la ligne L vers PARIS et la DEFENSE.
N'attendez plus pour découvrir ce très bel appartement chaleureux et sa terrasse, contactez Catherine Blouin au 0646307213 pour organiser une visite.
Les informations sur les risques auxquels ce bien est exposé sont disponibles sur le site Georisque : georisques. gouv. fr
Catherine Blouin - EI - est Agent Commercial mandataire en immobilier, immatriculé au Registre Spécial des Agents Commerciaux du Tribunal de Commerce de Pontoise sous le n°852432491.
Siège social du mandant : effiCity, 48 avenue de Villiers - 75017 PARIS - Société par Actions Simplifiée, société au capital de 132 373,05 euros, immatriculée au RCS Paris 497 617 746 et titulaire de la Carte professionnelle CPI 7501 2015 000 002 025 - CCI Paris IDF - Caisse de Garantie : GALIAN Assurances 89 rue de la Boétie 75008 Paris
53 m²
4 302 €
23 m²
3
2
1
Nord
Oui
Oui
Consommations énergétiques
Logement économe
175
Logement énergivore (kWhEP/m2/an)
Émissions de gaz à effet de serre
Faible émission de GES
5
Forte émission de GES(kgeqCO2/m2/an)
Contact Mme Catherine Blouin
Contacter gratuitement à l'aide du formulaire ci-dessous.