69002 ? PERRACHE - INVESTISSEUR ? STUDIO 14m2 ? PREMIER ETAGE ? SANS VIS-A-VIS ? TOTALEMENT RENOVE ? CAVE - GRENIER - RENTABILITE 6,5%
Loïc FERNANDEZ et Efficity, ont le plaisir de vous présenter ce studio de 14 m², idéalement situé au 13 cours Suchet, dans le 2? arrondissement de Lyon.
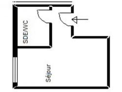
Ce bien, au premier étage d'un immeuble ancien, se compose d'une pièce de vie principale avec espace cuisine, ainsi que d'une salle d'eau avec WC. Il est vendu libre de toute occupation, offrant ainsi une belle opportunité pour un investissement locatif, un pied-à-terre ou un premier achat.
Sa localisation est un véritable atout : à proximité immédiate de la gare de Perrache, du métro, des lignes de tramway et de toutes les commodités du quartier. Vous bénéficiez ici d'un emplacement central, pratique et recherché.
Le studio nécessite une rénovation complète afin de le remettre au goût du jour et de valoriser pleinement son potentiel.
Une opportunité rare dans un secteur dynamique de Lyon.
COTE APPARTEMENT :
- Double vitrage PVC
- Orientation Ouest
- Une cave au sous-sol
- Un grenier
COTE FINANCE :
- Loyer: 675€ dont 30€ de charges
- Taxe foncière : 290 euros/an
- Charges : 52€/trimestre (eau froide, entretien des parties commune, fond travaux Alur)
- DPE : D
COTE PRATIQUE :
- Gare Lyon Perrache à 400m
- Métro Perrache ligne A à 400m
- Tram T1 et T2 à 50m
- Centre commercial Confluence à 800m
- Commerces de proximité (épicerie, boulangerie, tabac presse, brasserie, restaurants.)
Pour plus d'informations ou pour organiser une visite, veuillez me contacter au 06 71 73 76 66 par mail lfernandez@efficity.com du lundi au dimanche.
Les informations sur les risques auxquels ce bien est exposé sont disponibles sur le site Georisque : georisques. gouv. fr
Loic Fernandez - EI - est Agent Commercial mandataire en immobilier, immatriculé au Registre Spécial des Agents Commerciaux du Tribunal de Commerce de Bourg-en-Bresse sous le n°898127121.
Siège social du mandant : effiCity, 48 avenue de Villiers - 75017 PARIS - Société par Actions Simplifiée, société au capital de 132 373,05 euros, immatriculée au RCS Paris 497 617 746 et titulaire de la Carte professionnelle CPI 7501 2015 000 002 025 - CCI Paris IDF - Caisse de Garantie : GALIAN Assurances 89 rue de la Boétie 75008 Paris
14 m²
8 929 €
1
1
1
1
1
Oui
Oui
Consommations énergétiques
Logement économe
330
Logement énergivore (kWhEP/m2/an)
Émissions de gaz à effet de serre
Faible émission de GES
10
Forte émission de GES(kgeqCO2/m2/an)
Contact M. Loic Fernandez
Contacter gratuitement à l'aide du formulaire ci-dessous.