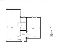
(75011) - RUE DE CHARONNE - 25M2 - 1/2 PIECES - SÉJOUR (CHAMBRE) - CUISINE INDEPENDANTE - CAVE - ASCENSEUR. Efficity, l'agence qui estime votre bien en ligne vous propose cet appartement de 25,1M2 carrez situé au 6ième étage avec ascenseur d'une copropriété des années 50. Il se compose d'une entrée et à droite d'une cuisine indépendante ( 8,11M2) et à gauche d'une chambre/séjour (15M2) desservant une salle d'eau avec WC. Très lumineux et sans aucun vis à vis. Possibilité d'ouvrir entre les deux pièces pour obtenir un vrai deux pièces avec grand séjour, chambre et salle d'eau (vidéo d'un appartement identique rénové avec devis sur simple demande). Une cave complète ce bien. Gardiens. Parties communes, cage d'ascenseur et étanchéité toiture très récente. M°Charonne à 2 mn à pieds.
Les informations sur les risques auxquels ce bien est exposé sont disponibles sur le site Georisque : georisques. gouv. fr
Olivier Bloud - EI - est Agent Commercial mandataire en immobilier, immatriculé au Registre Spécial des Agents Commerciaux du Tribunal de Commerce de Nanterre sous le n°832886055.
Siège social du mandant : effiCity, 48 avenue de Villiers - 75017 PARIS - Société par Actions Simplifiée, société au capital de 132 373,05 euros, immatriculée au RCS Paris 497 617 746 et titulaire de la Carte professionnelle CPI 7501 2015 000 002 025 - CCI Paris IDF - Caisse de Garantie : GALIAN Assurances 89 rue de la Boétie 75008 Paris
25 m²
10 600 €
1
1
1
1
6 sur 7
Oui
Oui
Consommations énergétiques
Logement économe
448
Logement énergivore (kWhEP/m2/an)
Émissions de gaz à effet de serre
Faible émission de GES
42
Forte émission de GES(kgeqCO2/m2/an)
Contact M. Olivier Bloud
Contacter gratuitement à l'aide du formulaire ci-dessous.