GONCOURT - T5 TRAVERSANT - 3 CHAMBRES - EXPO SUD - PETITE COPROPRIETE
75011 ? Situé dans un quartier vivant du 11è arrondissement, entre les métros Goncourt, Parmentier, République et Belleville, venez découvrir ce bel appartement 5 pièces traversant, situé au premier étage avec ascenseur d'une petite copropriété bien tenue.
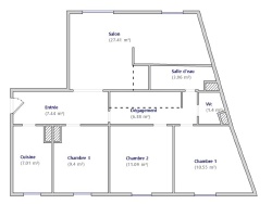
L'appartement se compose comme suit :
-Couloir d'entrée doté de nombreux rangements
-Double séjour de 28m2 exposé SUD
-Cuisine indépendante
-3 vraies chambres au calme sur cour
-Salle d'eau avec douche à l'italienne
-WC séparés
L'appartement nécessite des travaux de remise au goût du jour mais dispose de nombreux atouts qui sauront séduire une vie de famille. Un grand séjour lumineux, une cuisine indépendante, des chambres au calme, de grands placards de rangement. L'appartement est situé à proximité immédiate (-100m) des écoles maternelle et élémentaire Parmentier et du Collège Lucie et Raymond Aubrac.
L'immeuble construit en 1957 dispose d'un ascenseur, d'un local poubelle, d'un local vélo/poussettes et d'une courette partagée. La copropriété de 22 lots est très calme.
Une cave en sous-sol est à votre disposition.
A visiter rapidement !
Les informations sur les risques auxquels ce bien est exposé sont disponibles sur le site Georisque : georisques. gouv. fr
Lisa Vidal - EI - est Agent Commercial mandataire en immobilier, immatriculé au Registre Spécial des Agents Commerciaux du Tribunal de Commerce de Bordeaux sous le n°843915679.
Siège social du mandant : effiCity, 48 avenue de Villiers - 75017 PARIS - Société par Actions Simplifiée, société au capital de 132 373,05 euros, immatriculée au RCS Paris 497 617 746 et titulaire de la Carte professionnelle CPI 7501 2015 000 002 025 - CCI Paris IDF - Caisse de Garantie : GALIAN Assurances 89 rue de la Boétie 75008 Paris
85 m²
9 882 €
27 m²
5
3
1
1
1 sur 7
1957
Sud
Oui
Oui
Consommations énergétiques
Logement économe
271
Logement énergivore (kWhEP/m2/an)
Émissions de gaz à effet de serre
Faible émission de GES
49
Forte émission de GES(kgeqCO2/m2/an)
Contact Mme Lisa Vidal
Contacter gratuitement à l'aide du formulaire ci-dessous.