92400 - COURBEVOIE - QUARTIER BECON / DELAGE - APPARTEMENT F3 de 60 m²- SUD - ASCENSEUR - 2 CHAMBRES - TERRASSE- CALME - LUMINEUX - PARKING - GARE DE BECON - TOUS COMMERCES
Efficity l'agence qui estime votre bien en ligne, vous propose dans une résidence très récente de grand standing, un appartement de 3 pièces dans le quartier de bécon les bruyères.
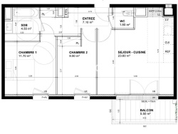
Situé au 3 ème étage surélevé avec ascenseur, cet appartement calme de 59 m² loi carrez se compose d'une entrée avec rangements, d'une cuisine haut de gamme ouverte sur le séjour et la terrasse exposée plein sud, deux chambres, une salle de bains, 1 wc séparé. L'appartement qui dispose d'un parquet massif est équipé de technologies modernes comme la domotique et une climatisation réversible. La copropriété dispose d'une terrasse collective qui se situe sur le toit ainsi que de nombreux panneaux solaires. Un très grand local à vélo sécurisé et équipé est disponible. La résidence dispose de boîtes à lettres et à colis myRENZbox connectées.
Les commerces, écoles, crèches, parc des Bruyères et le futur parc Delage ainsi transports sont à proximité. La gare de Bécon (qui fera partie du Grand Paris) est à 3 minutes à pied.
Les informations sur les risques auxquels ce bien est exposé sont disponibles sur le site Georisque : georisques. gouv. fr
Eric Aufour - EI - est Agent Commercial mandataire en immobilier, immatriculé au Registre Spécial des Agents Commerciaux du Tribunal de Commerce de Nanterre sous le n°904650645.
Siège social du mandant : effiCity, 48 avenue de Villiers - 75017 PARIS - Société par Actions Simplifiée, société au capital de 132 373,05 euros, immatriculée au RCS Paris 497 617 746 et titulaire de la Carte professionnelle CPI 7501 2015 000 002 025 - CCI Paris IDF - Caisse de Garantie : GALIAN Assurances 89 rue de la Boétie 75008 Paris
60 m²
8 750 €
24 m²
3
2
1
3 sur 7
2021
Sud
Oui
Oui
Consommations énergétiques
Logement économe
90
Logement énergivore (kWhEP/m2/an)
Émissions de gaz à effet de serre
Faible émission de GES
9
Forte émission de GES(kgeqCO2/m2/an)
Contact M. Eric Aufour
Contacter gratuitement à l'aide du formulaire ci-dessous.