Votre agence CASA, agence immobilière à Caen, vous propose à la vente, un superbe appartement 3 pièces à Colombelles. Vivez au coeur d'un quartier en plein essor, entre le centre-ville, la vallée de l'Orne et la zone d'activités de Colombelles !Cette résidence contemporaine allie confort, élégance et qualité de vie : son architecture moderne met à l'honneur les matériaux nobles et s'ouvre sur un vaste jardin intérieur paysagé, partagé et aménagé en prairie. Il est parcouru d'allées piétonnes, jalonnées d'arbres et de pelouses.
Ses atouts : 3 pièces aux volumes parfaitement optimisés Double orientation pour une luminosité naturelle toute la journée Belle pièce de vie prolongée par un balcon généreux, idéal pour vos moments de détente Prestations soignées et confort moderne Commerces en pied d'immeuble pour un quotidien facilité Stationnement privé et sécurisé Profitez d'un cadre de vie privilégié, alliant tranquillité, modernité et dynamisme urbain.Un lieu idéal pour habiter ou investir à Colombelles, dans un quartier d'avenir ! Opportunité à saisir. Contactez dès maintenant votre agence CASA pour organiser une présentation
Observations
Honoraires à la charge du vendeur. Dans une copropriété de 27 lots. Aucune procédure n'est en cours. Non soumis au DPE. Les informations sur les risques auxquels ce bien est exposé sont disponibles sur le site Géorisques : georisques.gouv.fr.
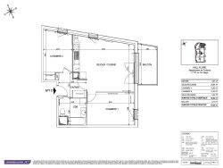
58 m²
3 576 €
6.00 m²
25.00 m²
3
2
1
1
1
2025
Est
1 (6.00 m²)
Oui
1
Oui (27 lots)
Contact CASA IMMO
Contacter gratuitement à l'aide du formulaire ci-dessous.