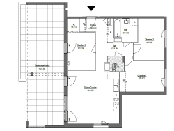
Moulin à vent, votre future résidence d'exception à Vénissieux, à deux pas de toutes commodités, je vous propose à la vente ce très bel appartement de 86,70m² avec sa magnifique Terrasse aux dernières normes comprenant : Une entrée, un séjour avec cuisine ouverte donnant sur la Terrasse de 52m² , trois chambres, une salle de bain et un WC. Isolation phonique et thermique renforcés, faibles charges. Bâtiment basse consommation Merci de contacter votre conseiller Grégory pour plus d'informations L'appartement est vendu avec un parking en sous-sol Visuel non contractuel. Copropriété de 54 lots - dont 54 lots habitation. (Pas de procédure en cours). Charges annuelles : 1200 euros.