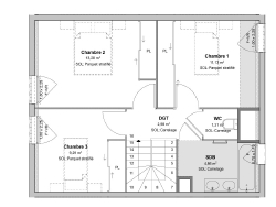
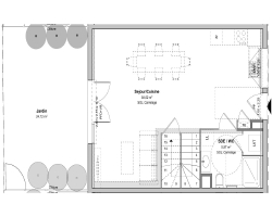
A Vénissieux, idéalement située face au parc Clos Layat, et à deux pas de toutes commodités, je vous propose à la vente ce très beau Duplex de 87,34m² avec son Jardin aux dernières normes comprenant : Au premier niveau, un séjour avec cuisine ouverte donnant sur lle jardin de 25m² , une salle d'eau avec wc. A l'étage, trois chambres, une salle de bain et un WC. Isolation phonique et thermique renforcés, faibles charges. Bâtiment basse consommation Merci de contacter votre conseiller Grégory pour plus d'informations Visuel non contractuel. Copropriété de 56 lots (Pas de procédure en cours). Charges annuelles : 1200 euros.