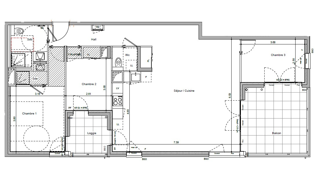
Dans le centre de La Verpillière, au pied des commerces, je vous propose à la vente ce magnifique T4 de 82,06m² qui saura vous séduire par sa situation, son séjour avec sa cuisine américaine donnant sur une terrasse de 20,80m² . Il est également composé d'une salle de bains, de trois chambres, ainsi qu'un WC indépendant. Un garage en sous-sol est vendu avec l'appartement ainsi qu'une place de parking Bâtiment basse consommation Contactez Gregory au O6.69.26.64.26 pour plus d'informations Visuel non contractuel Copropriété de 180 lots (Pas de procédure en cours). Charges annuelles : 1200 euros.