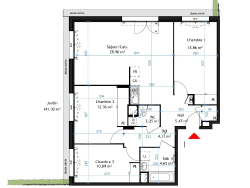
Dans le centre de La Verpillière, au pied des commerces, je vous propose à la vente ce ravissant T4 qui saura vous séduire par sa situation, son séjour avec sa cuisine américaine donnant sur un beau jardin de 141m². Il est également composé d'une salle de bains, de trois chambres, ainsi qu'un WC indépendant. Deux garages en sous-sol sont vendu avec l'appartement ainsi qu'une place de parking Bâtiment basse consommation Contactez Gregory pour plus d'informations Visuel non contractuel Copropriété de 74 lots (Pas de procédure en cours). Charges annuelles : 1200 euros.