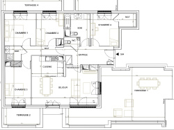
Découvrez ce spacieux appartement à Champigny-sur-Marne, dans le quartier prisé du Plateau. Un cadre de vie serein et dynamique vous y attend, sublimé par de vastes terrasses privatives : 4 terrasses de 7 à 49m2 Situé dans le quartier paisible et dynamique du Plateau, cet appartement offre un cadre de vie équilibré à seulement 15 km de Paris. La ville, bordée par la Marne, allie des espaces verts préservés à des infrastructures modernes, créant une atmosphère idéale pour la détente et la vie urbaine. - Séjour/Cuisine : 33 m2 - Chambre 1 : 12 m2 - Chambre 2 : 10 m2 - Chambre 3 : 13 m2 - Chambre 4 : 10,50 m2 - Salle de bains : 7,45 m2 - Salle d'eau : 2,81 m2 Cet appartement est très bien desservi : l'arrêt de bus 'Fort de Champigny' (lignes 7 et 208) est en pied de résidence, le marché du centre-ville est à 7 minutes en voiture, et les bords de Marne avec ses guinguettes sont à 15 minutes à pied. Le Parc du Tremblay est accessible en 10 minutes en voiture, et un large éventail d'écoles (maternelle, groupe scolaire, collège et lycée) se trouve à moins de 20 minutes à pied. Deux gares RER (A et E) sont également disponibles à proximité, et la future ligne 15 du Grand Paris Express renforcera encore les liaisons d'ici 2027. ? Vastes terrasses privatives totalisant 74,61 m2, véritable prolongement extérieur du séjour. ? Résidence neuve certifiée NF Habitat et RE 2020, garantissant des économies d'énergie et un habitat durable. ? Architecture néoclassique audacieuse et raffinée, s'intégrant parfaitement dans le paysage urbain de Champigny-sur-Marne. ? Emplacement privilégié à proximité de Paris, des transports en commun performants et des espaces verts de la Marne. Pour plus d'informations sur cet appartement d'exception à 556 209 EUR, contactez-nous. Frais de notaire réduits Pas de Frais d'agence - Photos d'ambiance, non contractuelles
107 m²
5 198 €
5
4
1
1
2
5 sur 5
Oui
Oui
2
4
Oui (203 lots)
Consommations énergétiques
Logement économe
71
Logement énergivore (kWhEP/m2/an)
Émissions de gaz à effet de serre
Faible émission de GES
10
Forte émission de GES(kgeqCO2/m2/an)
Contact AMAR Denis
Contacter gratuitement à l'aide du formulaire ci-dessous.