Appartement 5 pièces Duplex - Dernier Etage Terrasse
Lyon 69003
0
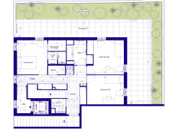
A Lyon 3°, à l'abri de l'agitation urbaine, à la frontière entre Montchat et Grange Blanche, cette résidence incarne une vision rare et contemporaine de l'habitat lyonnais au pied des transports, commerces, écoles. Je vous propose de visiter ce magnifique Duplex de 145m² situé au dernier étage avec 2 terrasses. Au premier niveau, l'espace nuit avec 3 chambres sur terrasse de 45m², une salle de bains, un WC séparé, une salle d'eau et une buanderie. A l'étage, une chambre avec salle d'eau et dressing, un séjour avec cusisine US donnant sur une terrasse de 84m² et un Wc séparé. Résidence aux dernières normes, Isolation phonique et thermique renforcés, faibles charges. Visuel non contractuel. Contactez Grégory pour plus d'informations au O6.69.26.64.26 Copropriété de 15 lots - dont 15 lots habitation. Charges annuelles : 2400 euros.